£2,470 pcm
(£570 pw)
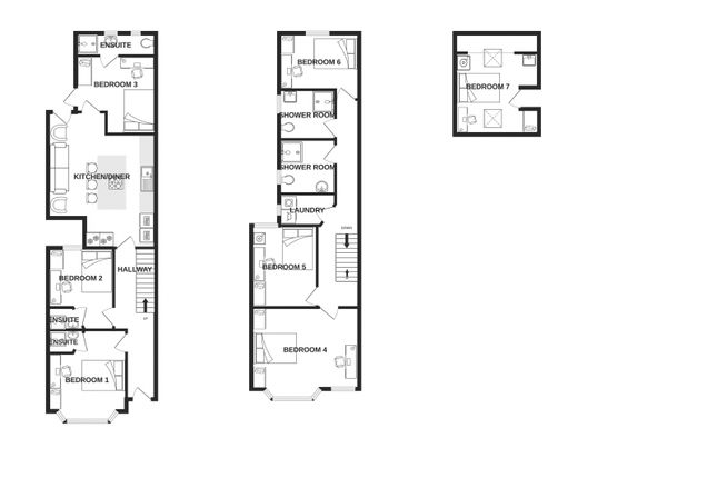
6 bed terraced house to rentKing Edward Road, Brynmill, Swansea SA1
6 beds
4 baths
1 reception
EPC Rating: C
Available from 1 July 2026
Furnished
Student friendly
About this property
Electricity
Gas
Internet
Water
On street/residents parking
Central heating
Double glazing
Close to University
Close to City Centre
High quality refurbishment
Popular student road
Bills included
A modern, high specification, completely refurbished student property available for academic year 2026/2027, located on the sought after King Edwards Road, a short walk to Swansea University and close to the City Centre. The property briefly comprises of six bedrooms, four bathrooms, lounge, fitted kitchen. Viewing is advised to appreciate the standard of this property.
Holding Deposit: £715.38 / £102.19 per person
Minimum Contract Term: 12 Months ( July to June )
A modern, high specification, completely refurbished student property available for academic year 2026/2027, located on the sought after King Edwards Road, a short walk to Swansea University and close to the City Centre. The property briefly comprises of six bedrooms, four bathrooms, lounge, fitted kitchen. Viewing is advised to appreciate the standard of this property.
Holding Deposit: £715.38 / £102.19 per person
Minimum Contract Term: 12 Months ( July to June )
More information
Deposit
£3,450
Council tax band
Student Property
Letting arrangements



.png)