£1,365 pcm
(£315 pw)
3 bed semi-detached house to rentVienna Court, Morley, Leeds LS27
3 beds
2 baths
EPC Rating: C
Available immediately
Unfurnished
About this property
No Agent Fees
Students Can Enquire
Property Reference Number: 2655898
Property Reference: 2655898.
*available immediately* un- furnished***
we are proud to offer this stunning three-bedroom semi-detached property in the very popular area of churwell morley leeds.
3-bedroom townhouse in the very popular area of churwell morley leeds. Boasting en suite facilities, A garage and great commuter links
situated in churwell, this home is ideally for A family or professional couple located for the commuter. With easy access to the M62, M621 and leeds city centre. A 5-minute walk to the train station and great for all bus routes into leeds city centre and other destinations. Your destination is always in reach. Also nearby are A host of schools, supermarkets and the white rose shopping centre.
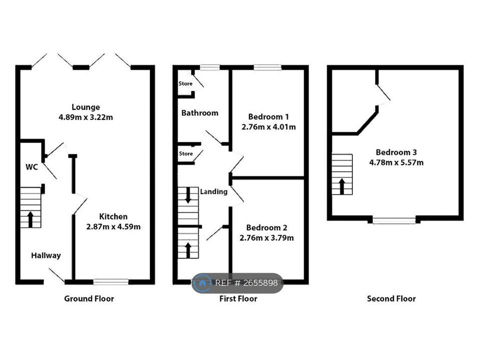
The ground floor is host to A good-sized entrance hall that flows to the kitchen and offers plenty of worktop/cupboard space. The modern kitchen/diner has A range of wall and base units with an inset gas hob and electric oven, built-in fridge freezer, dishwasher, and plumbing for A washing machine. The lounge is bursting with natural light from the numerous windows and french doors that lead to the rear garden. A downstairs WC concludes the ground floor.
Moving upstairs the spacious theme continues with 2 double bedrooms, both of A neutral decor and ready to move in to. Perfect for growing family. The family bathroom comprises of A low-level flush WC, hand basin and over the bath shower facilities. In the bathroom you can also find the boiler fitted within A cupboard that is newly fitted approx 1 year ago! A clever space for A home office can be found on the first floor that is perfect for those working from home. The 2nd floor you can find the master bedroom that has en suite facilities and adds the finishing touches to an already great home!
Externally to the front, you have an easy maintainable yard and to the rear is A fenced and secure garden that allows children to play safely. To the rear you also have off-road parking and A garage for additional parking or storage.
Available to move in right away, this property benefits from available parking, and garden access. Property is offered unfurnished.
Viewing is highly recommended. Please Contact today for more details or to arrange a viewing!
Summary
Rent £1,365.00 per month (£315.00 per week)
Deposit / Bond is £1,575.00
Minimum tenancy is 12 months
Maximum number of tenants is 4
Summary & Exclusions:
- Rent Amount: £1,365.00 per month (£315.00 per week)
- Deposit / Bond: £1,575.00
- 3 Bedrooms
- 2 Bathrooms
- Property comes unfurnished
- Available to move in from 15 November 2025
- Minimum tenancy term is 12 months
- Maximum number of tenants is 4
- Students welcome to enquire
- No Pets, sorry
- No Smokers
- Family Friendly
- Bills not included
- Property has parking
- Property has garden access
- EPC Rating: C
If calling, please quote reference: 2655898
Fees:
You will not be charged any admin fees.
** Contact today to book a viewing and have the landlord show you round! **
Request Details form responded to 24/7, with phone bookings available 9am-9pm, 7 days a week.
OpenRent endeavours to make all property particulars as accurate and reliable as possible, however if you require any further clarification or information please contact us. When applying for a tenancy using the Rent Now process, you will be required to pay one month's rent and any deposit before moving in. This will be paid to OpenRent and released to the landlord once you have moved in. With OpenRent there are no administration fees to pay.
Property Reference two million six hundred and fifty-five thousand eight hundred and ninety-eight
*available immediately* un- furnished***
we are proud to offer this stunning three-bedroom semi-detached property in the very popular area of churwell morley leeds.
3-bedroom townhouse in the very popular area of churwell morley leeds. Boasting en suite facilities, A garage and great commuter links
situated in churwell, this home is ideally for A family or professional couple located for the commuter. With easy access to the M62, M621 and leeds city centre. A 5-minute walk to the train station and great for all bus routes into leeds city centre and other destinations. Your destination is always in reach. Also nearby are A host of schools, supermarkets and the white rose shopping centre.
The ground floor is host to A good-sized entrance hall that flows to the kitchen and offers plenty of worktop/cupboard space. The modern kitchen/diner has A range of wall and base units with an inset gas hob and electric oven, built-in fridge freezer, dishwasher, and plumbing for A washing machine. The lounge is bursting with natural light from the numerous windows and french doors that lead to the rear garden. A downstairs WC concludes the ground floor.
Moving upstairs the spacious theme continues with 2 double bedrooms, both of A neutral decor and ready to move in to. Perfect for growing family. The family bathroom comprises of A low-level flush WC, hand basin and over the bath shower facilities. In the bathroom you can also find the boiler fitted within A cupboard that is newly fitted approx 1 year ago! A clever space for A home office can be found on the first floor that is perfect for those working from home. The 2nd floor you can find the master bedroom that has en suite facilities and adds the finishing touches to an already great home!
Externally to the front, you have an easy maintainable yard and to the rear is A fenced and secure garden that allows children to play safely. To the rear you also have off-road parking and A garage for additional parking or storage.
Available to move in right away, this property benefits from available parking, and garden access. Property is offered unfurnished.
Viewing is highly recommended. Please Contact today for more details or to arrange a viewing!
Summary
Rent £1,365.00 per month (£315.00 per week)
Deposit / Bond is £1,575.00
Minimum tenancy is 12 months
Maximum number of tenants is 4
Summary & Exclusions:
- Rent Amount: £1,365.00 per month (£315.00 per week)
- Deposit / Bond: £1,575.00
- 3 Bedrooms
- 2 Bathrooms
- Property comes unfurnished
- Available to move in from 15 November 2025
- Minimum tenancy term is 12 months
- Maximum number of tenants is 4
- Students welcome to enquire
- No Pets, sorry
- No Smokers
- Family Friendly
- Bills not included
- Property has parking
- Property has garden access
- EPC Rating: C
If calling, please quote reference: 2655898
Fees:
You will not be charged any admin fees.
** Contact today to book a viewing and have the landlord show you round! **
Request Details form responded to 24/7, with phone bookings available 9am-9pm, 7 days a week.
OpenRent endeavours to make all property particulars as accurate and reliable as possible, however if you require any further clarification or information please contact us. When applying for a tenancy using the Rent Now process, you will be required to pay one month's rent and any deposit before moving in. This will be paid to OpenRent and released to the landlord once you have moved in. With OpenRent there are no administration fees to pay.
Property Reference two million six hundred and fifty-five thousand eight hundred and ninety-eight
More information
Deposit
Council tax band
Letting arrangements



.png)