£700 pcm
(£162 pw)
Room to rentIslingword Place, Brighton BN2
1 bed
2 baths
Available immediately
Furnished
House share
About this property
No Agent Fees
Room Only (Shared House)
Students Can Enquire
Bills Included
Property Reference Number: 2659705
Property Reference: 2659705.
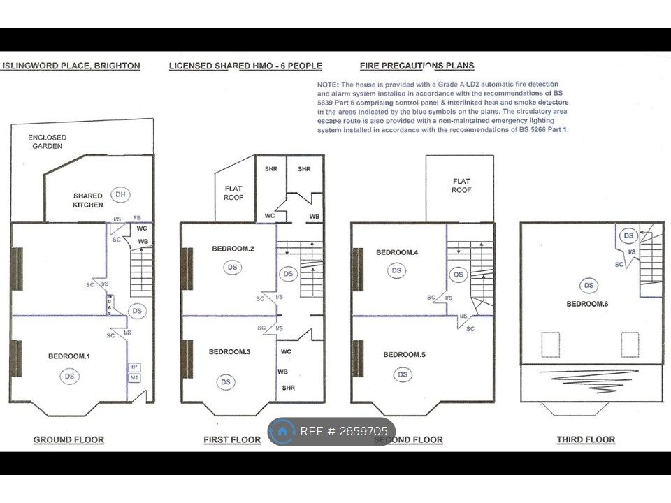
1st floor double room (9m2) will be available in this 6 bed 3 story terraced HMO house in Kemp Town area of Brighton. The house is within close proximity of the Sussex Royal County Hospital and Amex headquarters and city center. It has full central heating and is fully furnished. It has 2 showers, 2 toilets and a back garden. The white goods include: 2 fridge freezers, washer drier, microwave, ceramic oven, kettle and toaster. Rent price includes all bills. Both students and professionals are welcome.
Summary & Exclusions:
- Rent Amount: £700.00 per month (£161.54 per week)
- Deposit / Bond: £700.00
- 6 Bedroom Property (1 room currently available for rent)
- 2 Bathrooms
- Property comes furnished
- Available to move in from 15 November 2025
- Minimum tenancy term is 6 months
- Maximum number of tenants is 1
- Students welcome to enquire
- No Pets, sorry
- No Smokers
- Not Suitable for Families / Children
- Bills Included
- No Parking Available
- Property has garden access
- EPC Rating: EPC Not Required (Shared Accommodation)
If calling, please quote reference: 2659705
Fees:
You will not be charged any admin fees.
** Contact today to book a viewing and have the landlord show you round! **
Request Details form responded to 24/7, with phone bookings available 9am-9pm, 7 days a week.
OpenRent endeavours to make all property particulars as accurate and reliable as possible, however if you require any further clarification or information please contact us. When applying for a tenancy using the Rent Now process, you will be required to pay one month's rent and any deposit before moving in. This will be paid to OpenRent and released to the landlord once you have moved in. With OpenRent there are no administration fees to pay.
Property Reference two million six hundred and fifty-nine thousand seven hundred and five
1st floor double room (9m2) will be available in this 6 bed 3 story terraced HMO house in Kemp Town area of Brighton. The house is within close proximity of the Sussex Royal County Hospital and Amex headquarters and city center. It has full central heating and is fully furnished. It has 2 showers, 2 toilets and a back garden. The white goods include: 2 fridge freezers, washer drier, microwave, ceramic oven, kettle and toaster. Rent price includes all bills. Both students and professionals are welcome.
Summary & Exclusions:
- Rent Amount: £700.00 per month (£161.54 per week)
- Deposit / Bond: £700.00
- 6 Bedroom Property (1 room currently available for rent)
- 2 Bathrooms
- Property comes furnished
- Available to move in from 15 November 2025
- Minimum tenancy term is 6 months
- Maximum number of tenants is 1
- Students welcome to enquire
- No Pets, sorry
- No Smokers
- Not Suitable for Families / Children
- Bills Included
- No Parking Available
- Property has garden access
- EPC Rating: EPC Not Required (Shared Accommodation)
If calling, please quote reference: 2659705
Fees:
You will not be charged any admin fees.
** Contact today to book a viewing and have the landlord show you round! **
Request Details form responded to 24/7, with phone bookings available 9am-9pm, 7 days a week.
OpenRent endeavours to make all property particulars as accurate and reliable as possible, however if you require any further clarification or information please contact us. When applying for a tenancy using the Rent Now process, you will be required to pay one month's rent and any deposit before moving in. This will be paid to OpenRent and released to the landlord once you have moved in. With OpenRent there are no administration fees to pay.
Property Reference two million six hundred and fifty-nine thousand seven hundred and five
More information
Deposit
Council tax band
Letting arrangements



.png)