£1,600 pcm
(£369 pw)
2 bed flat to rentThe Moorings, Commercial Street, Leith EH6
2 beds
2 baths
EPC Rating: D
Available from 17 November 2025
Unfurnished
About this property
Not HMO
EPC Rating - D
Council Tax Band - G
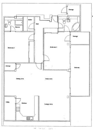
Neutrally decorated throughout the property comprises of 2 large double bedrooms; bedroom 1 with bathroom ensuite with access as separate bathroom from hall; second bedroom with shower ensuite; very large sitting room with study area and separate living area; fully fitted kitchen with appliances provided along with separate utility area. Laminate flooring throughout. Large balcony. Electric Heating. Private Parking. Letting Agent Registration Number: LARN1806008
Deposit: £1,700
Landlord registration: 52973/230/28130
Deposit: £1,700
Landlord registration: 52973/230/28130



.png)