£850 pcm
(£196 pw)
1 bed flat to rentRoyal Road, Ramsgate, Kent CT11
1 bed
1 bath
1 reception
EPC Rating: C
Just added
Available from 1 December 2025
Unfurnished
About this property
No Deposit Option Available
Private Entrance
Private Outdoor Space
Communal Garden
Newly Refurbished
Close To Town & Harbour
*No Deposit Option Available*
Newly Refurbished Garden Flat (awaiting interior photos)
Miles & Barr are delighted to offer this newly refurbished lower ground garden flat to the lettings market. The property is having a complete makeover with new kitchen and bathroom, redecoration and new flooring throughout. You are welcomed to your own private entrance, lovely size lounge, large double bedroom, kitchen, bathroom and utility room.
Access to a private outside space and steps leading to a communal garden. You are just a short distance to the Town, Royal Harbour and public Transport. Call Miles & Barr for your exclusive viewing. Available now.
Council Tax Band A
EPC Rating C
To check broadband and mobile phone coverage please visit Ofcom here
Location
"Ramsgate is situated on the southerly aspect of the Isle of Thanet and benefits the country’s only Royal Harbour, its status being granted by King George IV in 1821. The distinctive and beautiful harbour has a vibrant yachting community alongside some commercial activity and was where the Little Ships evacuation of Dunkirk set out from in 1940.
The town is enjoying something of a Renaissance with its large amount of Grade II Listed property, many set within elegant Regency squares, or overlooking the sea, others with links to or influenced by the architect Augustus Pugin. In recent years the Royal Harbour has seen many restaurants, cafes and bars emerge alongside quirky independent retail outlets, some utilising the arches on the quayside beneath Royal Parade.
Ramsgate is steeped in history with associations to many well-known figures including Queen Victoria, Karl Marx and Vincent Van Gogh as well as having a fascinating network of tunnels beneath the main centre. The fortunes of the town have been hugely assisted by the recent addition of a high-speed rail link to London St Pancras making a commute for many a viable option.
The centre is enjoying something of a Renaissance with its large amount of Grade II Listed property, many set within elegant Regency squares, or overlooking the sea, others with links to or influenced by the architect Augustus Pugin. In recent years the Royal Harbour has seen many restaurants, cafes and bars emerge alongside quirky independent retail outlets, some utilising the arches on the quayside beneath Royal Parade."
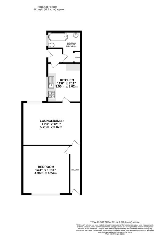
Living Room (13' 3" x 15' 7")
Kitchen (9' 3" x 10' 2")
Bedroom (11' 7" x 16' 9")
Bathroom (10' 0" x 4' 10")
Newly Refurbished Garden Flat (awaiting interior photos)
Miles & Barr are delighted to offer this newly refurbished lower ground garden flat to the lettings market. The property is having a complete makeover with new kitchen and bathroom, redecoration and new flooring throughout. You are welcomed to your own private entrance, lovely size lounge, large double bedroom, kitchen, bathroom and utility room.
Access to a private outside space and steps leading to a communal garden. You are just a short distance to the Town, Royal Harbour and public Transport. Call Miles & Barr for your exclusive viewing. Available now.
Council Tax Band A
EPC Rating C
To check broadband and mobile phone coverage please visit Ofcom here
Location
"Ramsgate is situated on the southerly aspect of the Isle of Thanet and benefits the country’s only Royal Harbour, its status being granted by King George IV in 1821. The distinctive and beautiful harbour has a vibrant yachting community alongside some commercial activity and was where the Little Ships evacuation of Dunkirk set out from in 1940.
The town is enjoying something of a Renaissance with its large amount of Grade II Listed property, many set within elegant Regency squares, or overlooking the sea, others with links to or influenced by the architect Augustus Pugin. In recent years the Royal Harbour has seen many restaurants, cafes and bars emerge alongside quirky independent retail outlets, some utilising the arches on the quayside beneath Royal Parade.
Ramsgate is steeped in history with associations to many well-known figures including Queen Victoria, Karl Marx and Vincent Van Gogh as well as having a fascinating network of tunnels beneath the main centre. The fortunes of the town have been hugely assisted by the recent addition of a high-speed rail link to London St Pancras making a commute for many a viable option.
The centre is enjoying something of a Renaissance with its large amount of Grade II Listed property, many set within elegant Regency squares, or overlooking the sea, others with links to or influenced by the architect Augustus Pugin. In recent years the Royal Harbour has seen many restaurants, cafes and bars emerge alongside quirky independent retail outlets, some utilising the arches on the quayside beneath Royal Parade."
Living Room (13' 3" x 15' 7")
Kitchen (9' 3" x 10' 2")
Bedroom (11' 7" x 16' 9")
Bathroom (10' 0" x 4' 10")


.png)