£16,250 pcm
(£3,750 pw)
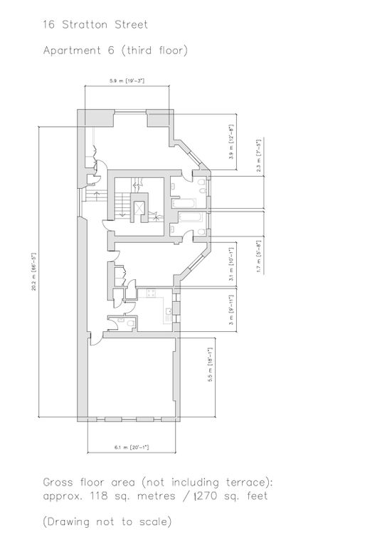
3 bed flat to rentStratton Street, London W1J
3 beds
2 baths
1 reception
Available immediately
Furnished
About this property
A spacious three bedroom, three bathroom lateral apartment situated within this beautiful red brick building located just moments from Green Park. The apartment further benefits from guest WC, air conditioning, lift and day porter. Located on the prestigious Stratton Street in the heart of Mayfair, this elegant property offers refined living just moments from Green Park and Berkeley Square.
More information
Deposit
Council tax band
Letting arrangements



.png)