£1,100 pcm
(£254 pw)
Studio to rentFore Street, London N18
1 bed
1 bath
Just added
Available immediately
Furnished or unfurnished
About this property
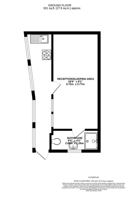
Studio flat
Ground floor
Local amenities
To Let - N18
We are pleased to offer this spacious ground floor flat.
This property benefits with underfloor heating.
We are pleased to offer this spacious ground floor flat.
This property benefits with underfloor heating.
More information
Deposit
£1,269
Council tax band
Letting arrangements



.png)