£895 pcm
(£207 pw)
2 bed flat to rentBeswick Green, Swynnerton, Stone ST15
2 beds
1 bath
1 reception
EPC Rating: C
Just added
Available from 19 January 2026
Unfurnished
About this property
First floor two bedroom courtyard apartment with two covered parking spaces. Lovely position on the edge of the development with far reaching views over rural Staffordshire. Beswick Green is a unique development at the very heart of Staffordshire. Exclusively to rent this prestigious development blends traditional architectural style and craftsmanship with twenty first century convenience and energy saving features. In a private courtyard setting on the outskirts of Swynnerton village on the verge of picturesque countryside, the development comprises 22 cottages, houses and apartments. Local village amenities: The cricket club, church and The Fitzherbert Arms pub are all within strolling distance. Stone, Eccleshall, Stafford and the Potteries are all within fifteen minutes drive. Pets may be considered (small dog or cat)
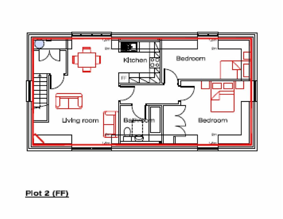
No. 19 Coach House Apartment (969 sq ft)
A traditional style first floor apartment built over the coach house. Spacious accommodation with open plan living space and fully fitted kitchen, two bedrooms, built-in wardrobes to the main bedroom, bathroom. Lovely position on the edge of the development with fabulous open views to the rear. The property has two covered parking spaces and storage lockers.
No. 20 Detached House (1415 sq ft)
A detached house on the edge of the development with open aspect to the rear set in large gardens with a detached 2 car garage. Accommodation comprises: Entrance hall with under stairs storage, Cloakroom & WC. Through lounge with fireplace and wood burning stove, fully fitted kitchen with open plan dining area, Upstairs there are three double bedroom with en-suite to the main bedroom and a family bathroom.
No. 14 Mews Cottage (826 sq ft)
Mews Cottage with private rear garden enjoying a south westerly aspect. Accommodation comprises: Entrance Hall, cloakroom with WC, sitting room with window overlooking the courtyard, fitted kitchen with adjoining open plan ding area and French doors opening to the gardens. Upstairs there are two double bedrooms with fitted wardrobes to the main bedroom, bathroom. Two parking spaces.
No. 13 Mews Cottage (1375 sq ft)
A larger mews cottage occupying a lovely south facing corner position. Spacious accommodation with entrance hall, cloakroom with WC, fitted kitchen with adjoining dining room, separate utility room, spacious lounge with French doors opening to the gardens. Upstairs there are three double bedrooms, two of which have built-in wardrobes, en-suite shower room to the main bedroom and a family bathroom. The property has two covered parking spaces and storage lockers.
No. 12 Mews Cottage (841 sq ft)
Mews Cottage with a private enclosed rear garden. Accommodation comprises: Entrance Hall, cloakroom with WC, sitting room with window overlooking the courtyard, fitted kitchen with adjoining open plan dining area and French doors opening to the gardens. Upstairs there are two double bedrooms with fitted wardrobes to the main bedroom, bathroom. Two parking spaces.
No. 11 Mews Cottage (1043 sq ft)
A Larger mews cottage built partly over the archway. Accommodation comprises: Entrance hall with cloakroom & WC, lounge with window overlooking the courtyard, fitted kitchen with adjoining open plan dining area and French doors opening to the gardens. The house is more spacious upstairs with three double bedrooms, two of which have built-in wardrobes, en-suite shower room to the main bedroom and a family bathroom. The property has two covered parking spaces and storage lockers.
No. 10 Mews Cottage (1075 sq ft)
Slightly larger than number 11, this mews cottage is again built partly over the archway. Accommodation comprises: Entrance hall with cloakroom & WC, lounge with window overlooking the courtyard, fitted kitchen with adjoining open plan dining area and French doors opening to the gardens. The house is more spacious upstairs with three double bedrooms, two of which have built-in wardrobes, en-suite shower room to the main bedroom and a family bathroom. The property has two covered parking spaces and storage lockers.
No. 9 Mews Cottage (831 sq ft)
Mews Cottage with a private enclosed rear garden. Accommodation comprises: Entrance Hall, cloakroom with WC, sitting room with window overlooking the courtyard, fitted kitchen with adjoining open plan dining area and French doors opening to the gardens. Upstairs there are two double bedrooms with fitted wardrobes to the main bedroom and a bathroom. Two parking spaces.
No. 8 Mews Cottage (827 sq ft)
Mews Cottage with a private enclosed rear garden. Accommodation comprises: Entrance Hall, cloakroom with WC, sitting room with window overlooking the courtyard, fitted kitchen with adjoining open plan dining area and French doors opening to the gardens. Upstairs there are two double bedrooms with fitted wardrobes to the main bedroom and a bathroom. Two parking spaces.
No. 7 Mews Cottage (953 sq ft)
An unusual shape mews cottage in the corner of the courtyard, offering spacious accommodation and a larger garden. Accommodation comprises: Entrance hall, cloakroom with WC, fitted kitchen and open plan lounge / dining room with French doors opening to the gardens. Upstairs there are three double bedrooms and a family bathroom. The property has two covered parking spaces and storage lockers.
No. 6 Mews Cottage (841 sq ft)
Mews Cottage with a private enclosed rear garden. Accommodation comprises: Entrance Hall, cloakroom with WC, sitting room with window overlooking the courtyard, fitted kitchen with adjoining open plan dining area and French doors opening to the gardens. Upstairs there are two double bedrooms with fitted wardrobes to the main bedroom and a bathroom. The property has one covered parking space with a storage locker and an one open parking space.
Beswick House (1657 sq ft)
A spacious detached house standing in a large plot on the edge of the development. Accommodation comprises: Entrance hall, cloakroom & WC, large sitting room with French doors opening to the gardens and fireplace and wood burning stove, breakfast kitchen and separate dining room. Upstairs there are four bedrooms - 3 double and one single, two with built-in wardrobes, en-suite shower room to the main bedroom and a family bathroom. Covered parking for two cars.
No. 5 Coach House Apartment (981 sq ft)
A traditional style first floor apartment built over the coach house. Spacious accommodation with open plan living space and fully fitted kitchen, two bedrooms, built-in wardrobes to the main bedroom, bathroom. The property has two covered parking spaces and storage lockers.
No. 4 Coach House Apartment (981 sq ft)
A traditional style first floor apartment built over the coach house. Spacious accommodation with open plan living space and fully fitted kitchen, two bedrooms, built-in wardrobes to the main bedroom, bathroom. The property has two covered parking spaces and storage lockers.
No. 3 Mews Cottage (914 sq ft)
Mews Cottage with a private enclosed rear garden and open aspect to the rear. Accommodation comprises: Entrance Hall, cloakroom with WC, sitting room with window overlooking the courtyard, fitted kitchen with adjoining open plan dining area and French doors opening to the gardens. Upstairs there are two double bedrooms with fitted wardrobes to the main bedroom and a bathroom. Two parking spaces.
No. 2 Mews Cottage (918 sq ft)
Mews Cottage with a private enclosed rear garden and open aspect to the rear. Accommodation comprises: Entrance Hall, cloakroom with WC, sitting room with window overlooking the courtyard, fitted kitchen with adjoining open plan dining area and French doors opening to the gardens. Upstairs there are two double bedrooms with fitted wardrobes to the main bedroom and a bathroom. One covered parking space.
No. 1 Mews Cottage (956 sq ft)
Mews Cottage with a private enclosed rear garden and open aspect to the rear. Accommodation comprises: Entrance Hall, cloakroom with WC, sitting room with window overlooking the courtyard, fitted kitchen with adjoining open plan dining area and French doors opening to the gardens. Upstairs there are two double bedrooms with fitted wardrobes to the main bedroom and a bathroom. Two covered parking spaces.
No. 19 Coach House Apartment (969 sq ft)
A traditional style first floor apartment built over the coach house. Spacious accommodation with open plan living space and fully fitted kitchen, two bedrooms, built-in wardrobes to the main bedroom, bathroom. Lovely position on the edge of the development with fabulous open views to the rear. The property has two covered parking spaces and storage lockers.
No. 20 Detached House (1415 sq ft)
A detached house on the edge of the development with open aspect to the rear set in large gardens with a detached 2 car garage. Accommodation comprises: Entrance hall with under stairs storage, Cloakroom & WC. Through lounge with fireplace and wood burning stove, fully fitted kitchen with open plan dining area, Upstairs there are three double bedroom with en-suite to the main bedroom and a family bathroom.
No. 14 Mews Cottage (826 sq ft)
Mews Cottage with private rear garden enjoying a south westerly aspect. Accommodation comprises: Entrance Hall, cloakroom with WC, sitting room with window overlooking the courtyard, fitted kitchen with adjoining open plan ding area and French doors opening to the gardens. Upstairs there are two double bedrooms with fitted wardrobes to the main bedroom, bathroom. Two parking spaces.
No. 13 Mews Cottage (1375 sq ft)
A larger mews cottage occupying a lovely south facing corner position. Spacious accommodation with entrance hall, cloakroom with WC, fitted kitchen with adjoining dining room, separate utility room, spacious lounge with French doors opening to the gardens. Upstairs there are three double bedrooms, two of which have built-in wardrobes, en-suite shower room to the main bedroom and a family bathroom. The property has two covered parking spaces and storage lockers.
No. 12 Mews Cottage (841 sq ft)
Mews Cottage with a private enclosed rear garden. Accommodation comprises: Entrance Hall, cloakroom with WC, sitting room with window overlooking the courtyard, fitted kitchen with adjoining open plan dining area and French doors opening to the gardens. Upstairs there are two double bedrooms with fitted wardrobes to the main bedroom, bathroom. Two parking spaces.
No. 11 Mews Cottage (1043 sq ft)
A Larger mews cottage built partly over the archway. Accommodation comprises: Entrance hall with cloakroom & WC, lounge with window overlooking the courtyard, fitted kitchen with adjoining open plan dining area and French doors opening to the gardens. The house is more spacious upstairs with three double bedrooms, two of which have built-in wardrobes, en-suite shower room to the main bedroom and a family bathroom. The property has two covered parking spaces and storage lockers.
No. 10 Mews Cottage (1075 sq ft)
Slightly larger than number 11, this mews cottage is again built partly over the archway. Accommodation comprises: Entrance hall with cloakroom & WC, lounge with window overlooking the courtyard, fitted kitchen with adjoining open plan dining area and French doors opening to the gardens. The house is more spacious upstairs with three double bedrooms, two of which have built-in wardrobes, en-suite shower room to the main bedroom and a family bathroom. The property has two covered parking spaces and storage lockers.
No. 9 Mews Cottage (831 sq ft)
Mews Cottage with a private enclosed rear garden. Accommodation comprises: Entrance Hall, cloakroom with WC, sitting room with window overlooking the courtyard, fitted kitchen with adjoining open plan dining area and French doors opening to the gardens. Upstairs there are two double bedrooms with fitted wardrobes to the main bedroom and a bathroom. Two parking spaces.
No. 8 Mews Cottage (827 sq ft)
Mews Cottage with a private enclosed rear garden. Accommodation comprises: Entrance Hall, cloakroom with WC, sitting room with window overlooking the courtyard, fitted kitchen with adjoining open plan dining area and French doors opening to the gardens. Upstairs there are two double bedrooms with fitted wardrobes to the main bedroom and a bathroom. Two parking spaces.
No. 7 Mews Cottage (953 sq ft)
An unusual shape mews cottage in the corner of the courtyard, offering spacious accommodation and a larger garden. Accommodation comprises: Entrance hall, cloakroom with WC, fitted kitchen and open plan lounge / dining room with French doors opening to the gardens. Upstairs there are three double bedrooms and a family bathroom. The property has two covered parking spaces and storage lockers.
No. 6 Mews Cottage (841 sq ft)
Mews Cottage with a private enclosed rear garden. Accommodation comprises: Entrance Hall, cloakroom with WC, sitting room with window overlooking the courtyard, fitted kitchen with adjoining open plan dining area and French doors opening to the gardens. Upstairs there are two double bedrooms with fitted wardrobes to the main bedroom and a bathroom. The property has one covered parking space with a storage locker and an one open parking space.
Beswick House (1657 sq ft)
A spacious detached house standing in a large plot on the edge of the development. Accommodation comprises: Entrance hall, cloakroom & WC, large sitting room with French doors opening to the gardens and fireplace and wood burning stove, breakfast kitchen and separate dining room. Upstairs there are four bedrooms - 3 double and one single, two with built-in wardrobes, en-suite shower room to the main bedroom and a family bathroom. Covered parking for two cars.
No. 5 Coach House Apartment (981 sq ft)
A traditional style first floor apartment built over the coach house. Spacious accommodation with open plan living space and fully fitted kitchen, two bedrooms, built-in wardrobes to the main bedroom, bathroom. The property has two covered parking spaces and storage lockers.
No. 4 Coach House Apartment (981 sq ft)
A traditional style first floor apartment built over the coach house. Spacious accommodation with open plan living space and fully fitted kitchen, two bedrooms, built-in wardrobes to the main bedroom, bathroom. The property has two covered parking spaces and storage lockers.
No. 3 Mews Cottage (914 sq ft)
Mews Cottage with a private enclosed rear garden and open aspect to the rear. Accommodation comprises: Entrance Hall, cloakroom with WC, sitting room with window overlooking the courtyard, fitted kitchen with adjoining open plan dining area and French doors opening to the gardens. Upstairs there are two double bedrooms with fitted wardrobes to the main bedroom and a bathroom. Two parking spaces.
No. 2 Mews Cottage (918 sq ft)
Mews Cottage with a private enclosed rear garden and open aspect to the rear. Accommodation comprises: Entrance Hall, cloakroom with WC, sitting room with window overlooking the courtyard, fitted kitchen with adjoining open plan dining area and French doors opening to the gardens. Upstairs there are two double bedrooms with fitted wardrobes to the main bedroom and a bathroom. One covered parking space.
No. 1 Mews Cottage (956 sq ft)
Mews Cottage with a private enclosed rear garden and open aspect to the rear. Accommodation comprises: Entrance Hall, cloakroom with WC, sitting room with window overlooking the courtyard, fitted kitchen with adjoining open plan dining area and French doors opening to the gardens. Upstairs there are two double bedrooms with fitted wardrobes to the main bedroom and a bathroom. Two covered parking spaces.



.png)