£1,000,000
(£20,000/sq. ft)
Land for saleStaines Road, Feltham TW14
50 sq. ft
Freehold
About this property
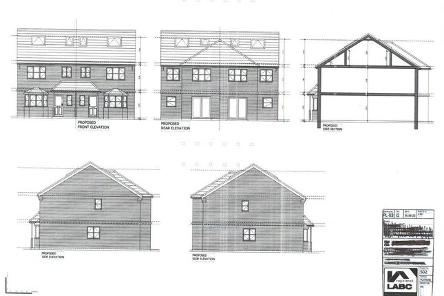
Ground up build with planning
Ref - 01054/537/P13
Approval for 1x retail unit, 3x 1bed maisonettes and a 2bed bungalow
Large plot of land, situated moments from local amenities, includes approved build up planning for 1x retail unit, 3x 1 bedroom maisonettes and a 2 bedroom bungalow.
Staines Road boasts ample amenities as well as providing easy access to Feltham town centre and other local towns such as Staines upon Thames. Access to M25 and M4 is within close proximity.
Please use the reference CHPK5233754 when contacting Foxtons.
Staines Road boasts ample amenities as well as providing easy access to Feltham town centre and other local towns such as Staines upon Thames. Access to M25 and M4 is within close proximity.
Please use the reference CHPK5233754 when contacting Foxtons.
Mortgage calculator
Monthly repayment
£5,002 per month
Whole of market comparison
70+ lenders and 10,000+ products
The monthly repayments provided are estimates and should be used as a guide only. The actual amount you can borrow will depend on your personal financial situation and subject to a full application. For a more precise estimate, please use the Mojo mortgage calculator. Your home or property may be repossessed if you do not keep up repayments on your mortgage.


