Guide price
£1,100,000
Land for saleLangdown Way, Brunel Road, Maidenhead SL6
Freehold
About this property
Land
Development Opportunity
Parking
Close to All Amenities
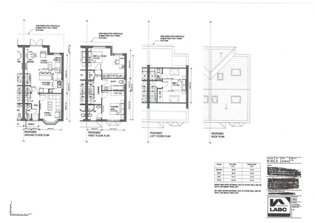
Development Opportunity – Land with Planning Permission for 4 x Three-Bedroom HousesAn excellent development opportunity to acquire a parcel of land with full planning permission granted for the construction of four well-proportioned three-bedroom family homes. The approved scheme offers a thoughtfully designed residential development, ideal for owner-occupiers or as an attractive investment opportunity.The consented plans provide for modern, practical layouts arranged over two floors, with each house benefiting from generous living accommodation, three bedrooms, and private outdoor space. The development is well suited to meet ongoing demand for quality family housing.The site is conveniently located with access to local amenities, transport links, schools, and services, enhancing its appeal to a wide range of buyers and tenants alike.This is a rare opportunity for developers and investors seeking a ready-to-go project with planning already in place, offering strong potential for resale or rental income.Further details, including planning references and approved drawings, are available upon request
Mortgage calculator
Monthly repayment
£5,502 per month
Whole of market comparison
70+ lenders and 10,000+ products
The monthly repayments provided are estimates and should be used as a guide only. The actual amount you can borrow will depend on your personal financial situation and subject to a full application. For a more precise estimate, please use the Mojo mortgage calculator. Your home or property may be repossessed if you do not keep up repayments on your mortgage.


.png)