£850,000
Land for saleEast Ridgeway, Cuffley, Hertfordshire EN6
Freehold
About this property
Development Opportunity
Planning Permission Granted
New Contemporary Style Detached Home
4 Bedrooms
Open Plan Kitchen
Gated Entrance
Driveway Parking
Rear Garden
Sought After Location
**Planning Permission Granted **
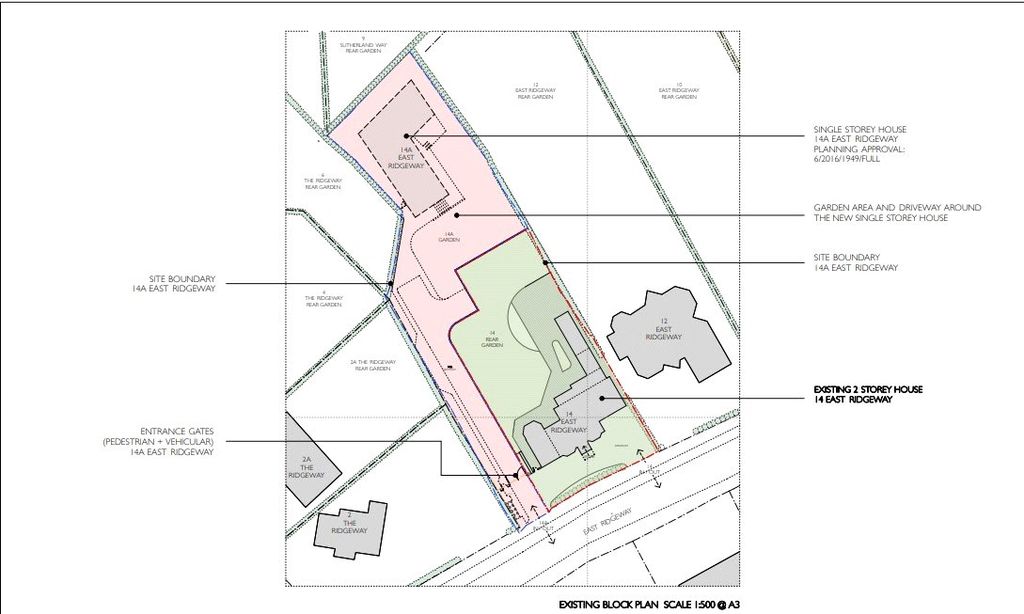
Planning granted for a split level 4-bedroom detached home with the principal accommodation set at the lower level facing onto the garden / deck area.
The front of the house faces south, and the principal rooms face east across the rear. The front of the proposed house is 46 metres distance from the main rear facade of the existing house at 14 East Ridgeway. The planning also includes a new gated driveway
Planning Application: 6/2016/1949/full
The Ridgeway is a prime address in Hertfordshire and benefits from excellent communications by both road and rail. Cuffley village is approx.1 mile away and provides local shops, and Cuffley main line station provides a regular service to Moorgate in 35 minutes. Potters bar is approx. 3 miles away and offers a more comprehensive range of shops and amenities with the mainline station provides services to both London Kings Cross and Moorgate in 18 minutes and 35 minutes respectively. Central London is approximately 20 miles away and the property is ideally placed for access to the national motorway network via the M25 or A1.
There is an excellent selection of schools nearby including Queenswood, Stormont, Lochinver House and Haileybury.
*Please note there is also a pre application submitted
Application Reference: 6/2022/2291/pa
Proposal: Pre-application advice for the increase in size of the 221sqm proposed single storey 4 bed split-level detached house (Planning Consent 6/2016/1949/full &
6/2020/1440/var) to become a 5 bed two storey split-level detached house to become 355sqm.
Planning granted for a split level 4-bedroom detached home with the principal accommodation set at the lower level facing onto the garden / deck area.
The front of the house faces south, and the principal rooms face east across the rear. The front of the proposed house is 46 metres distance from the main rear facade of the existing house at 14 East Ridgeway. The planning also includes a new gated driveway
Planning Application: 6/2016/1949/full
The Ridgeway is a prime address in Hertfordshire and benefits from excellent communications by both road and rail. Cuffley village is approx.1 mile away and provides local shops, and Cuffley main line station provides a regular service to Moorgate in 35 minutes. Potters bar is approx. 3 miles away and offers a more comprehensive range of shops and amenities with the mainline station provides services to both London Kings Cross and Moorgate in 18 minutes and 35 minutes respectively. Central London is approximately 20 miles away and the property is ideally placed for access to the national motorway network via the M25 or A1.
There is an excellent selection of schools nearby including Queenswood, Stormont, Lochinver House and Haileybury.
*Please note there is also a pre application submitted
Application Reference: 6/2022/2291/pa
Proposal: Pre-application advice for the increase in size of the 221sqm proposed single storey 4 bed split-level detached house (Planning Consent 6/2016/1949/full &
6/2020/1440/var) to become a 5 bed two storey split-level detached house to become 355sqm.
Mortgage calculator
Monthly repayment
£4,252 per month
Whole of market comparison
70+ lenders and 10,000+ products
The monthly repayments provided are estimates and should be used as a guide only. The actual amount you can borrow will depend on your personal financial situation and subject to a full application. For a more precise estimate, please use the Mojo mortgage calculator. Your home or property may be repossessed if you do not keep up repayments on your mortgage.



.png)