Guide price
£185,000
Land for saleGillan, Manaccan, Helston, Cornwall TR12
EPC Rating: F
Sold STC
About this property
Planning consent secured
3 first floor bedrooms
3 ground floor reception rooms
Plus open plan lounge, dining room
Stunning rural location
1.97 acres in total
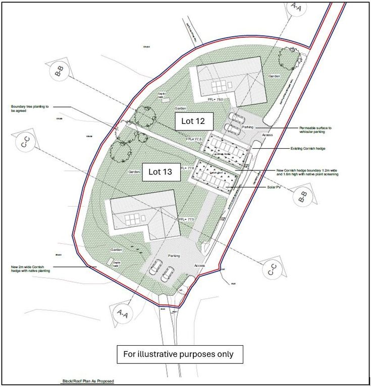
Lot 12 – Building Plot
1.97 acres (0.80 ha)
An extensive site with planning consent for a substantial and stylish 3 bedroom detached house with views over farmland in an excellent rural location, with plenty of outside space including a large paddock/field corner.
The approved layout provides extensive family accommodation across 2,159 ft2 (201 m2), including:
Ground Floor – Entrance hallway, open plan lounge/kitchen/dining room, utility room, 3 further reception rooms.
First Floor – Three bedrooms (all ensuite) plus landing/gallery and a family bathroom.
The site has mains electricity and mains water connected and shares a private septic tank.
Please note there is a potential cil charge of £108,955.97 attached to the planning consent. The expiry date for the planning consent is 12/12/2026.
The plot is part of a site with 4 existing residential caravans which are individually let under Assured Shorthold Tenancies and which has the benefit of a Certificate of Lawful Existing Use or Development.
Situation
Trewothack Farm is located near the rugged Cornish coast on the Lizard peninsula within a highly popular residential and holiday destination. The Lizard Peninsula, known as Cornwall’s forgotten Eden, is renowned for its unique flora, fauna, history and geology and offers the sw Coast Path, numerous other walking trails and several golf courses. The Goonhilly Nature Reserve & Earth Station, various coves, beaches and the Helford river are all nearby, between them offering a wide variety of activities including diving, swimming and boating.
The nearby village of Manaccan has a parish church, chapel, public house, playing fields and primary school, while the small fishing village of Porthallow has a village hall, public house and cove. Helford village has an active sailing club and a summer passenger ferry to Helford Passage on the north bank of the river and St. Keverne village offers local shopping. More extensive amenities including national stores, a leisure centre and cinema can be found in the market town of Helston, with Falmouth, Redruth, Truro and St. Ives all offering comprehensive facilities.
The area offers a good selection of state primary and secondary schooling together with a range of independent schools including Truro High School for Girls, Truro School, Truro School Prep, Polwhele House and St. Piran’s.
General Information
Method of sale
Trewothack Farm is offered for sale by private treaty as a whole, or in lots.
Tenure
The property is sold freehold and subject to the leases, licenses and agreements summarised in the sales brochure. Further details are available from the vendor’s agent.
Electricity
Mains.
Water
Mains.
Drainage
Shared septic tank. We understand the private drainage at the property may not be compliant with the relevant regulations and purchasers may therefore need to budget for new equipment.
Wayleaves, easements and rights of way
The property is being sold subject to and with the benefit of all rights including; rights of way, whether public or private, light, support, drainage, water and electricity supplies and other rights and obligations, easements and quasi-easements and restrictive covenants and all existing and proposed wayleaves for masts, pylons, stays, cables, drains, water and gas and other pipes whether referred to in these particulars or not.
In the event lots are sold separately, provision for shared access and/or services will be made including the rights to repair and to share relevant maintenance costs.
Designations
The farm is set in the Cornwall Area of Outstanding Natural Beauty.
Planning
Interested parties should undertake their own due diligence in respect of all planning matters including potential cil charges. A summary of planning consents is within the sales brochure.
Sporting, timber and mineral rights
All sporting, timber and mineral rights are included in the freehold sale, in so far as they are owned. The mineral rights are excluded from the sale as they are owned by a third party.
Overage
None.
Fixtures and fittings
All items usually regarded as tenant’s fixtures and fittings and equipment, including fitted carpets and curtains, together with garden ornaments and statuary, are specifically excluded from the sale. These may be available to the purchaser by separate negotiation.
Covenants and/or restrictions
There may be restrictions and/or covenants listed on the Land Registry Title deeds, details of which will be made available by the vendor’s solicitor on request.
Local authority
Cornwall County Council.
VAT
Any guide price quoted or discussed is exclusive of VAT. In the event that a sale of the property, or any part of it, or any right attached to it, becomes a chargeable supply for the purposes of VAT, such tax will be payable in addition.
Health and safety
Given the potential hazards of a working farm we ask you to be as vigilant as possible when making your inspection for your own personal safety, particularly around the farm buildings, livestock and machinery. Viewings are not suitable for minors.
Solicitors
Stephens Scown llp, Curzon House, Southernhay West, Exeter, EX1 1RS
Postcode
TR12 6HE
What3Words
Farm Entrance (north): ///bonnet.cork.bronze
Directions
From Helston take the A3083 south past the Royal Navy Air Base Culdrose. After 2 miles take the first exit off the roundabout (signed St Keverne / Gweek). After 1 mile take the third exit on the roundabout (signed St Keverne / Coverack). After 1.6 miles turn left (signed St Martin / Manaccan / Helford). After 1.6 miles in Newtown-in-St-Martin turn right and continue straight on through the village to Tregidden (ignoring SatNav telling you to turn left). Continue 1.5 miles to a T junction and turn left. After 1.3 miles you will see two stone pillars and a Trewothack Farm sign on the left. The entrance driveway is then found 1⁄4 mile along the road on the right-hand side.
Viewing
Strictly by confirmed appointment with the vendor’s agents, Strutt & Parker in Exeter .
1.97 acres (0.80 ha)
An extensive site with planning consent for a substantial and stylish 3 bedroom detached house with views over farmland in an excellent rural location, with plenty of outside space including a large paddock/field corner.
The approved layout provides extensive family accommodation across 2,159 ft2 (201 m2), including:
Ground Floor – Entrance hallway, open plan lounge/kitchen/dining room, utility room, 3 further reception rooms.
First Floor – Three bedrooms (all ensuite) plus landing/gallery and a family bathroom.
The site has mains electricity and mains water connected and shares a private septic tank.
Please note there is a potential cil charge of £108,955.97 attached to the planning consent. The expiry date for the planning consent is 12/12/2026.
The plot is part of a site with 4 existing residential caravans which are individually let under Assured Shorthold Tenancies and which has the benefit of a Certificate of Lawful Existing Use or Development.
Situation
Trewothack Farm is located near the rugged Cornish coast on the Lizard peninsula within a highly popular residential and holiday destination. The Lizard Peninsula, known as Cornwall’s forgotten Eden, is renowned for its unique flora, fauna, history and geology and offers the sw Coast Path, numerous other walking trails and several golf courses. The Goonhilly Nature Reserve & Earth Station, various coves, beaches and the Helford river are all nearby, between them offering a wide variety of activities including diving, swimming and boating.
The nearby village of Manaccan has a parish church, chapel, public house, playing fields and primary school, while the small fishing village of Porthallow has a village hall, public house and cove. Helford village has an active sailing club and a summer passenger ferry to Helford Passage on the north bank of the river and St. Keverne village offers local shopping. More extensive amenities including national stores, a leisure centre and cinema can be found in the market town of Helston, with Falmouth, Redruth, Truro and St. Ives all offering comprehensive facilities.
The area offers a good selection of state primary and secondary schooling together with a range of independent schools including Truro High School for Girls, Truro School, Truro School Prep, Polwhele House and St. Piran’s.
General Information
Method of sale
Trewothack Farm is offered for sale by private treaty as a whole, or in lots.
Tenure
The property is sold freehold and subject to the leases, licenses and agreements summarised in the sales brochure. Further details are available from the vendor’s agent.
Electricity
Mains.
Water
Mains.
Drainage
Shared septic tank. We understand the private drainage at the property may not be compliant with the relevant regulations and purchasers may therefore need to budget for new equipment.
Wayleaves, easements and rights of way
The property is being sold subject to and with the benefit of all rights including; rights of way, whether public or private, light, support, drainage, water and electricity supplies and other rights and obligations, easements and quasi-easements and restrictive covenants and all existing and proposed wayleaves for masts, pylons, stays, cables, drains, water and gas and other pipes whether referred to in these particulars or not.
In the event lots are sold separately, provision for shared access and/or services will be made including the rights to repair and to share relevant maintenance costs.
Designations
The farm is set in the Cornwall Area of Outstanding Natural Beauty.
Planning
Interested parties should undertake their own due diligence in respect of all planning matters including potential cil charges. A summary of planning consents is within the sales brochure.
Sporting, timber and mineral rights
All sporting, timber and mineral rights are included in the freehold sale, in so far as they are owned. The mineral rights are excluded from the sale as they are owned by a third party.
Overage
None.
Fixtures and fittings
All items usually regarded as tenant’s fixtures and fittings and equipment, including fitted carpets and curtains, together with garden ornaments and statuary, are specifically excluded from the sale. These may be available to the purchaser by separate negotiation.
Covenants and/or restrictions
There may be restrictions and/or covenants listed on the Land Registry Title deeds, details of which will be made available by the vendor’s solicitor on request.
Local authority
Cornwall County Council.
VAT
Any guide price quoted or discussed is exclusive of VAT. In the event that a sale of the property, or any part of it, or any right attached to it, becomes a chargeable supply for the purposes of VAT, such tax will be payable in addition.
Health and safety
Given the potential hazards of a working farm we ask you to be as vigilant as possible when making your inspection for your own personal safety, particularly around the farm buildings, livestock and machinery. Viewings are not suitable for minors.
Solicitors
Stephens Scown llp, Curzon House, Southernhay West, Exeter, EX1 1RS
Postcode
TR12 6HE
What3Words
Farm Entrance (north): ///bonnet.cork.bronze
Directions
From Helston take the A3083 south past the Royal Navy Air Base Culdrose. After 2 miles take the first exit off the roundabout (signed St Keverne / Gweek). After 1 mile take the third exit on the roundabout (signed St Keverne / Coverack). After 1.6 miles turn left (signed St Martin / Manaccan / Helford). After 1.6 miles in Newtown-in-St-Martin turn right and continue straight on through the village to Tregidden (ignoring SatNav telling you to turn left). Continue 1.5 miles to a T junction and turn left. After 1.3 miles you will see two stone pillars and a Trewothack Farm sign on the left. The entrance driveway is then found 1⁄4 mile along the road on the right-hand side.
Viewing
Strictly by confirmed appointment with the vendor’s agents, Strutt & Parker in Exeter .
Mortgage calculator
Monthly repayment
£925 per month
Whole of market comparison
70+ lenders and 10,000+ products
The monthly repayments provided are estimates and should be used as a guide only. The actual amount you can borrow will depend on your personal financial situation and subject to a full application. For a more precise estimate, please use the Mojo mortgage calculator. Your home or property may be repossessed if you do not keep up repayments on your mortgage.
More information
Tenure
Council tax band
A band has not yet been confirmed.



.png)