Offers over
£90,000
Land for saleStourbridge Road, Catshill B61
Sold STC
Freehold
About this property
Building plot adjacent to
316 stourbridge road, catshill, bromsgrove B61 9LH
offers over £90,000 are invited
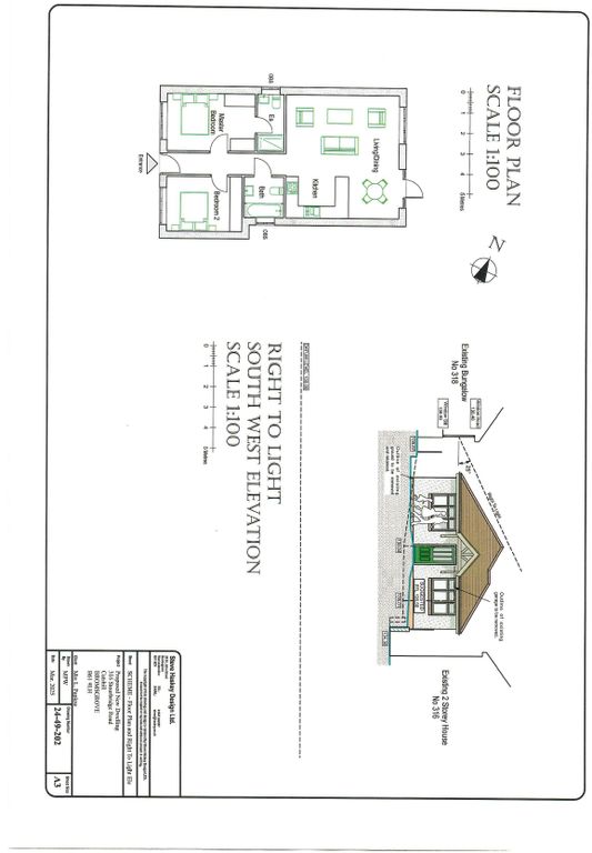
building plot with planning permission granted for A two bedroom detached bungalow adjacent to 316 stourbridge road catshill bromsgrove B61 9LH.
Full details can be viewed on Bromsgrove District Council planning portal under Application number 25/00668/tdc.
The bungalow would comprise;
Parking to front for two vehicles
canopy porch
reception hall
open plan kitchen / living / dining area
master bedroom with en-suite
family bathroom
long garden to the rear
Note;
The sale of the plot cannot be legal completed until the property has been registered at hm Land Registry (application currently in for first registration of both 316 Stourbridge Road & this plot).
316 Stourbridge Road is also being marketed separately by our agency.
Consumer Protection from Unfair Trading Regulations 2008.
The agents have not tested any apparatus, equipment, fixture, fitting or appliances and therefore cannot verify that they are in working order or fit for their purpose. The Purchaser's solicitors/surveyors should obtain verification. All measurements, text, plans, site areas, service charges, lease details and photographs are presented in good faith as a general guide and therefore should not be relied upon as statements or representations of fact and should not constitute part of an offer or contract. Items shown in the photographs are not necessarily included in the sale of the property. All measurements contained in these sale particulars should be assumed to be approximate and should be checked by the purchasers if of particular importance to them. Whilst we try to make our sale particulars as accurate as possible they may be subject to errors and/or omissions and therefore prospective purchasers must satisfy themselves by inspection or otherwise as to their correctness. If there are any queries of particular importance to prospective purchasers please contact us and we will be pleased to check the information. Buyers must check the availability of any property & make an appointment to view before embarking on any journey to see a property.
316 stourbridge road, catshill, bromsgrove B61 9LH
offers over £90,000 are invited
building plot with planning permission granted for A two bedroom detached bungalow adjacent to 316 stourbridge road catshill bromsgrove B61 9LH.
Full details can be viewed on Bromsgrove District Council planning portal under Application number 25/00668/tdc.
The bungalow would comprise;
Parking to front for two vehicles
canopy porch
reception hall
open plan kitchen / living / dining area
master bedroom with en-suite
family bathroom
long garden to the rear
Note;
The sale of the plot cannot be legal completed until the property has been registered at hm Land Registry (application currently in for first registration of both 316 Stourbridge Road & this plot).
316 Stourbridge Road is also being marketed separately by our agency.
Consumer Protection from Unfair Trading Regulations 2008.
The agents have not tested any apparatus, equipment, fixture, fitting or appliances and therefore cannot verify that they are in working order or fit for their purpose. The Purchaser's solicitors/surveyors should obtain verification. All measurements, text, plans, site areas, service charges, lease details and photographs are presented in good faith as a general guide and therefore should not be relied upon as statements or representations of fact and should not constitute part of an offer or contract. Items shown in the photographs are not necessarily included in the sale of the property. All measurements contained in these sale particulars should be assumed to be approximate and should be checked by the purchasers if of particular importance to them. Whilst we try to make our sale particulars as accurate as possible they may be subject to errors and/or omissions and therefore prospective purchasers must satisfy themselves by inspection or otherwise as to their correctness. If there are any queries of particular importance to prospective purchasers please contact us and we will be pleased to check the information. Buyers must check the availability of any property & make an appointment to view before embarking on any journey to see a property.
Mortgage calculator
Monthly repayment
£450 per month
Whole of market comparison
70+ lenders and 10,000+ products
The monthly repayments provided are estimates and should be used as a guide only. The actual amount you can borrow will depend on your personal financial situation and subject to a full application. For a more precise estimate, please use the Mojo mortgage calculator. Your home or property may be repossessed if you do not keep up repayments on your mortgage.



.png)