Offers over
£80,000
Land for saleArchiestown, Aberlour AB38
Freehold
About this property
Private garden
Double garage
Rural/secluded
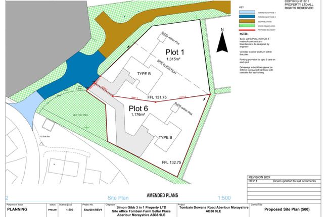
An attractive southernly facing plot with open views over farmland, ideally located in a quiet settlement, extending to 0.29 hectares (0.72 acres) or thereby.
The plot benefits from Planning Permission for the erection of a 1½ storey, five bedroom detached dwelling house, with an internal double garage (Reference 16/00305/app, dated 16th April 2016). A Certificate of Lawful Use or Development was also granted for the partial construction of a road or part of a road and provision of services to the foundation of the house on site (Reference 24/01333/cle, dated 6th February 2025).
It is understood that water is avaliable to the site.
The purchaser will be responsible for connecting to the mains electricity supply which is nearby.
Drainage will be via a private septic tank and soakaway system.
The plot benefits from Planning Permission for the erection of a 1½ storey, five bedroom detached dwelling house, with an internal double garage (Reference 16/00305/app, dated 16th April 2016). A Certificate of Lawful Use or Development was also granted for the partial construction of a road or part of a road and provision of services to the foundation of the house on site (Reference 24/01333/cle, dated 6th February 2025).
It is understood that water is avaliable to the site.
The purchaser will be responsible for connecting to the mains electricity supply which is nearby.
Drainage will be via a private septic tank and soakaway system.
Mortgage calculator
Monthly repayment
£400 per month
Whole of market comparison
70+ lenders and 10,000+ products
The monthly repayments provided are estimates and should be used as a guide only. The actual amount you can borrow will depend on your personal financial situation and subject to a full application. For a more precise estimate, please use the Mojo mortgage calculator. Your home or property may be repossessed if you do not keep up repayments on your mortgage.



.png)