Offers over
£100,000
Land for salePlot 1, Glen Elgin Road, Longmorn, Elgin, Morayshire IV30
About this property
Spacious Building Plot with Planning Permission pending
Picturesque Countryside Setting
Fantastic Location
Services Nearby
CCL Property is delighted to present this outstanding opportunity to acquire a generous building plot located just a short drive from the centre of Elgin. Set amidst stunning countryside, this attractive site benefits from pending planning permission for the erection of a four-bedroom, storey-and-a-half dwelling with a double garage. All essential services are readily available nearby, and-subject to appropriate consents-the design could be adapted to suit individual preferences.
The plot enjoys a peaceful yet convenient setting only minutes from New Elgin, where local amenities include a gp and dental surgery, nursery and childcare facilities, a sports centre, grocery stores, and a range of retail units.
Elgin itself is a vibrant market town and the administrative hub of Moray, offering an excellent selection of amenities including primary and secondary schools, hospital and health services, leisure and recreational facilities, and a broad mix of retail outlets. Moray College uhi provides education for approximately 10,000 students. Elgin lies on the A96, offering excellent transport connections to Inverness and Aberdeen, both with international airports.
One of the most impressive features of this site is its proximity to Millbuies Country Park, just a short walk away, where you can enjoy tranquil fishing, nature walks, mountain biking, and an abundance of local flora and fauna.
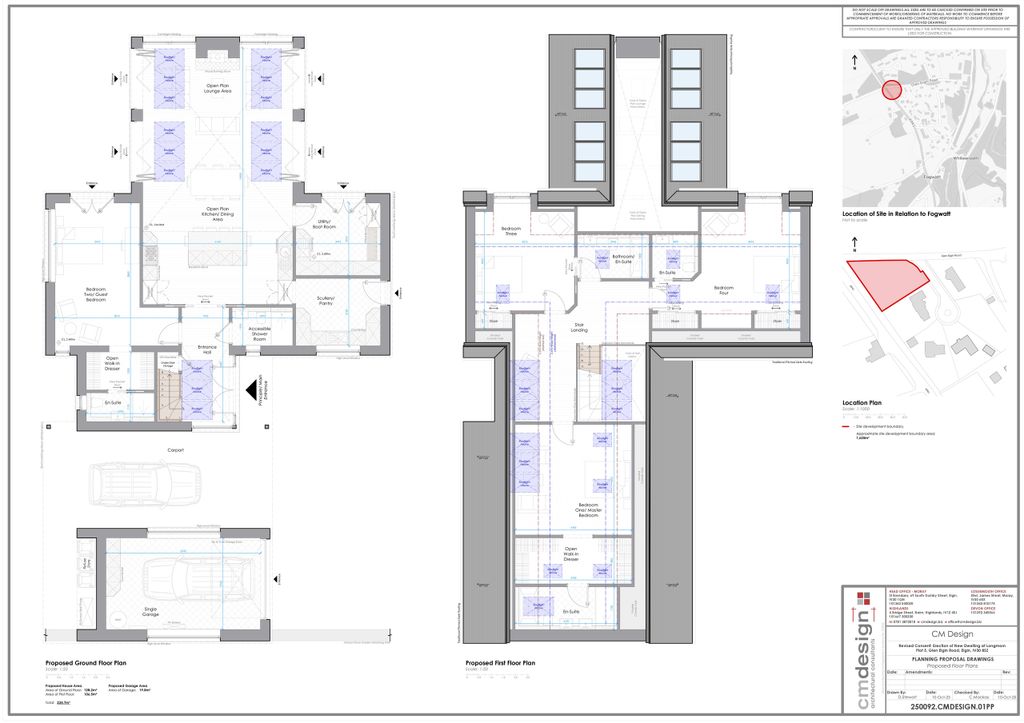
All pre-development conditions have been discharged, and a full Design & Build service is available from the vendor (CM Design).
The house design displayed is indicative; alternative storey-and-a-half designs are permitted. This plot is one of only two remaining self-build sites in Longmorn, where additional development approval is highly unlikely.
Nearby connections include power, water, BT, and gas supplies. A Geotechnical Report confirming porosity test compliance for soakaway requirements is available. The plot is cleared and construction-ready, with topsoil stored at the southern end for the purchaser’s use.
Access to the site is via Glen Elgin Road, leading toward the historic Longmorn Distillery and the scenic Speyside corridor to Rothes. The plot is situated on a quiet private cul-de-sac with a hardcore surface and a shared maintenance arrangement among residents.
Note: A small portion of the site is currently in temporary use by the neighbouring owner (Site 1). The full area, as outlined in red on the plan, will be reinstated upon completion of the sale.
The plot enjoys a peaceful yet convenient setting only minutes from New Elgin, where local amenities include a gp and dental surgery, nursery and childcare facilities, a sports centre, grocery stores, and a range of retail units.
Elgin itself is a vibrant market town and the administrative hub of Moray, offering an excellent selection of amenities including primary and secondary schools, hospital and health services, leisure and recreational facilities, and a broad mix of retail outlets. Moray College uhi provides education for approximately 10,000 students. Elgin lies on the A96, offering excellent transport connections to Inverness and Aberdeen, both with international airports.
One of the most impressive features of this site is its proximity to Millbuies Country Park, just a short walk away, where you can enjoy tranquil fishing, nature walks, mountain biking, and an abundance of local flora and fauna.
All pre-development conditions have been discharged, and a full Design & Build service is available from the vendor (CM Design).
The house design displayed is indicative; alternative storey-and-a-half designs are permitted. This plot is one of only two remaining self-build sites in Longmorn, where additional development approval is highly unlikely.
Nearby connections include power, water, BT, and gas supplies. A Geotechnical Report confirming porosity test compliance for soakaway requirements is available. The plot is cleared and construction-ready, with topsoil stored at the southern end for the purchaser’s use.
Access to the site is via Glen Elgin Road, leading toward the historic Longmorn Distillery and the scenic Speyside corridor to Rothes. The plot is situated on a quiet private cul-de-sac with a hardcore surface and a shared maintenance arrangement among residents.
Note: A small portion of the site is currently in temporary use by the neighbouring owner (Site 1). The full area, as outlined in red on the plan, will be reinstated upon completion of the sale.
Mortgage calculator
Monthly repayment
£500 per month
Whole of market comparison
70+ lenders and 10,000+ products
The monthly repayments provided are estimates and should be used as a guide only. The actual amount you can borrow will depend on your personal financial situation and subject to a full application. For a more precise estimate, please use the Mojo mortgage calculator. Your home or property may be repossessed if you do not keep up repayments on your mortgage.



.png)