Offers in region of
£140,000
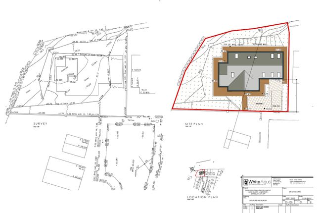
Land for saleLow Moor Lane, Woolley WF4
EPC Rating: F
About this property
Freehold parcel of land
Approx 1.67 Acres (0.676 Hectares)
Direct access off Low Moor Lane
Greenfield site
Existing garage with water & electric
Sought after village location
Situated between Wakefield & Barnsley
Excellent access to M1 Junction 38
Unconditional offers invited
For all enquiries contact fsl Estate Agents
Property Details
Offers are now invited for this freehold 1.67 Acre parcel of land situated off Low Moor Lane in Woolley. The greenfield site comprises a mix of former garden and dense woodland and includes a driveway with detached garage building. The building benefits from mains water and electric. For all enquiries please contact FSL Estate Agents on .
Size
Total area of 0.676 Hectares / 1.67 Acres as indicated on Title Plan WYK488568. Whilst areas of the site are overgrown, the boundaries of the site are reasonably visible. Any potential purchasers are advised to survey the full extent of the site to ensure that the existing boundaries reflect the area indicated on the Title Plan.
Tenure
Freehold land as registered under Title Number WYK488568.
Planning History
We are not aware of any current or previous planning applications being submitted for the site. Any potential purchasers should make their own enquiries with Wakefield Council planning department to investigate potential use of the site. Accordingly, the site is offered for sale on an unconditional basis with no future clawback provision.
Services
We are advised that the garage is served by mains water and electric.
Viewings
To arrange a viewing or to submit an offer please contact our friendly team on . Please note that the site is overgrown and ground uneven, therefore any access onto the site is undertaken at the viewers own risk.
Important Information
These particulars are intended only as general guidance. The Company therefore gives notice that none of the material issued or visual depictions of any kind made on behalf of the Company can be relied upon as accurately describing any of the Specified Matters prescribed by any Order made under the Property Misdescriptions Act 1991. Nor do they constitute a contract, part of a contract or a warranty.
Mortgage calculator
£700 per month
70+ lenders and 10,000+ products
The monthly repayments provided are estimates and should be used as a guide only. The actual amount you can borrow will depend on your personal financial situation and subject to a full application. For a more precise estimate, please use the Mojo mortgage calculator. Your home or property may be repossessed if you do not keep up repayments on your mortgage.



.png)