Guide price
£220,000
Land for saleNorton Green, Isle Of Wight PO40
Freehold
About this property
Ideal self build opportunity
Serviced plot
Quiet rural hamlet location
Planning permission granted
Nestled within the picturesque hamlet of Norton Green is this good sized, building plot with adjacent services and planning permission to build a four bedroom detached house.
Description
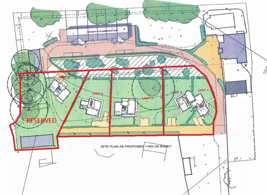
Plot 3, Woodpecker Drive represents an outstanding opportunity for individuals seeking to construct a bespoke residence, thoughtfully designed to accommodate contemporary family living and featuring an elegant combination of materials across its façades. The plot forms part of a select development approved under planning reference 20/00779/ful (pp-08650316), granting permission for the creation of seven distinctive detached properties. Current planning consent allows for a dwelling of approximately 168 square metres, positioned on the largest plot within the development.
Location
The hamlet of Norton Green, much of which lies within a designated Conservation Area, enjoys a secluded setting approximately one mile from the village of Freshwater, which offers a comprehensive range of shops, services, and amenities. The surrounding area boasts several attractive beaches, extensive protected downland and coastal walks, as well as the sssi-designated Afton Nature Reserve and the Yar Estuary. Additionally, the harbour town of Yarmouth, with its mainland ferry connections and renowned sailing facilities, is located within a five-minute drive, making this a highly desirable and conveniently situated location.
Viewings
Strictly by appointment with the selling agent Spence Willard
Important notice 1. Particulars: These particulars are not an offer or contract, nor part of one. You should not rely on statements by Spence Willard in the particulars or by word of mouth or in writing ("information") as being factually accurate about the property, its condition or its value. Neither Spence Willard nor any joint agent has any authority to make any representations about the property, and accordingly any information given is entirely without responsibility on the part of the agents, seller(s) or lessor(s).2. Photos etc: The photographs show only certain parts of the property as they appeared at the time they were taken. Areas, measurements and distances given are approximate only. 3. Regulations etc: Any reference to alterations to, or use of, any part of the property does not mean that any necessary planning, building regulations or other consent has been obtained. A buyer or lessee must find out by inspection or in other ways that these matters have been properly dealt with and that all information is correct. 4. VAT: The VAT position relating to the property may change without notice.
Description
Plot 3, Woodpecker Drive represents an outstanding opportunity for individuals seeking to construct a bespoke residence, thoughtfully designed to accommodate contemporary family living and featuring an elegant combination of materials across its façades. The plot forms part of a select development approved under planning reference 20/00779/ful (pp-08650316), granting permission for the creation of seven distinctive detached properties. Current planning consent allows for a dwelling of approximately 168 square metres, positioned on the largest plot within the development.
Location
The hamlet of Norton Green, much of which lies within a designated Conservation Area, enjoys a secluded setting approximately one mile from the village of Freshwater, which offers a comprehensive range of shops, services, and amenities. The surrounding area boasts several attractive beaches, extensive protected downland and coastal walks, as well as the sssi-designated Afton Nature Reserve and the Yar Estuary. Additionally, the harbour town of Yarmouth, with its mainland ferry connections and renowned sailing facilities, is located within a five-minute drive, making this a highly desirable and conveniently situated location.
Viewings
Strictly by appointment with the selling agent Spence Willard
Important notice 1. Particulars: These particulars are not an offer or contract, nor part of one. You should not rely on statements by Spence Willard in the particulars or by word of mouth or in writing ("information") as being factually accurate about the property, its condition or its value. Neither Spence Willard nor any joint agent has any authority to make any representations about the property, and accordingly any information given is entirely without responsibility on the part of the agents, seller(s) or lessor(s).2. Photos etc: The photographs show only certain parts of the property as they appeared at the time they were taken. Areas, measurements and distances given are approximate only. 3. Regulations etc: Any reference to alterations to, or use of, any part of the property does not mean that any necessary planning, building regulations or other consent has been obtained. A buyer or lessee must find out by inspection or in other ways that these matters have been properly dealt with and that all information is correct. 4. VAT: The VAT position relating to the property may change without notice.
Mortgage calculator
Monthly repayment
£1,100 per month
Whole of market comparison
70+ lenders and 10,000+ products
The monthly repayments provided are estimates and should be used as a guide only. The actual amount you can borrow will depend on your personal financial situation and subject to a full application. For a more precise estimate, please use the Mojo mortgage calculator. Your home or property may be repossessed if you do not keep up repayments on your mortgage.



.png)