Offers over
£500,000
Land for saleChambers Road, St. Leonards-On-Sea TN38
Freehold
About this property
Investment Opportunity
Granted Planning Permission
Demolition of Existing Building
Erection of Five Properties
Hs/fa/23/00448
Investment opportunity!
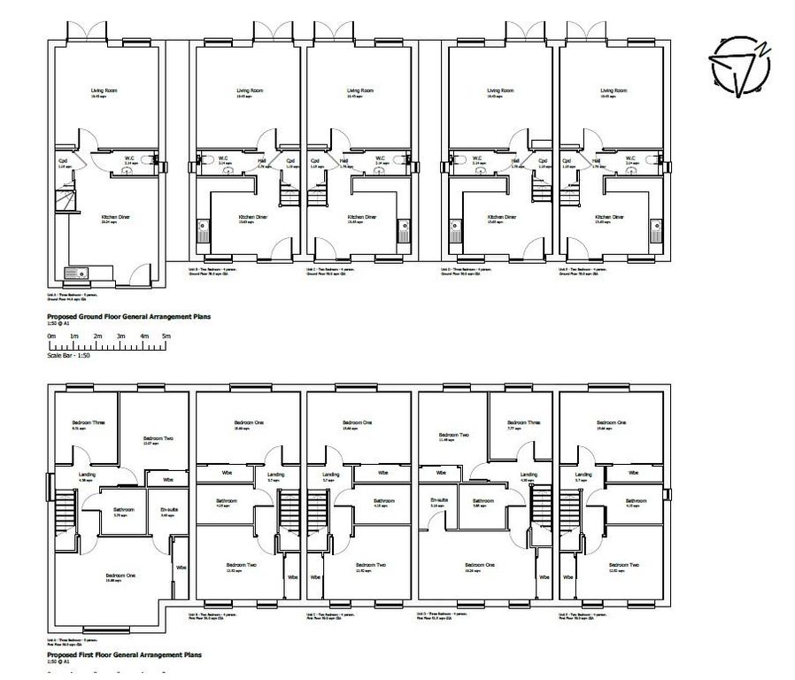
PCM Estate Agents welcome to the market an exciting opportunity to acquire this site with planning perimssion for the construction of five properties, two of which would be three bedrooms and three would be two bedrooms.
The build would require the existing building to be demolished. For further information please see Hastings Planning Portal under reference hs/fa/24/00239.
Please contact the owners agents to book your viewing and avoid disappointment.
PCM Estate Agents welcome to the market an exciting opportunity to acquire this site with planning perimssion for the construction of five properties, two of which would be three bedrooms and three would be two bedrooms.
The build would require the existing building to be demolished. For further information please see Hastings Planning Portal under reference hs/fa/24/00239.
Please contact the owners agents to book your viewing and avoid disappointment.
Mortgage calculator
Monthly repayment
£2,501 per month
Whole of market comparison
70+ lenders and 10,000+ products
The monthly repayments provided are estimates and should be used as a guide only. The actual amount you can borrow will depend on your personal financial situation and subject to a full application. For a more precise estimate, please use the Mojo mortgage calculator. Your home or property may be repossessed if you do not keep up repayments on your mortgage.



.png)