Offers over
£900,000
Land for saleHigh Street, Cherry Hinton CB1
EPC Rating: D
Freehold
About this property
Development Opportunity
Planning Permission Granted
25/01321/ful
Approximately: 0.28 Acre Area
A residential development opportunity situated on High Street in the popular and well connected area of Cherry Hinton, Cambridge.
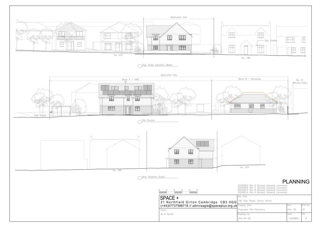
The site currently comprises a detached dwelling set within a generous residential plot with frontage onto High Street. Planning permission has been granted for the demolition of the existing property and the redevelopment of the site to provide a 2.5-storey nine bedroom, nine person large House in Multiple Occupation (Sui Generis) alongside a separate two bedroom dwelling, together with associated works.
The proposed scheme will create a substantial HMO building arranged across two and a half storeys, designed to provide nine individual bedrooms with shared living accommodation and associated facilities. In addition, the development includes the construction of a separate two bedroom residential dwelling positioned within the site, offering independent accommodation.
The proposal also includes associated landscaping, access arrangements and outdoor amenity space, creating a well considered residential scheme within an established neighbourhood setting.
Cherry Hinton is a well regarded suburb located to the east of Cambridge city centre, offering a range of everyday amenities including shops, schooling and recreational facilities. The area benefits from regular bus services along High Street and convenient access to Cambridge city centre, the railway station and the A14, making it a practical location for residents and commuters alike.
The planning permission (Ref: 25/01321/ful) was approved by Cambridge City Council in February 2026.
EPC Rating: D
Location
Within the High Street and village centre, there are several amenities such as two health centres, a mini supermarket, a newsagent, pharmacy, charity shop, post office and many restaurants and food outlets. There are various sports facilities and clubs within the village, including the leisure centre which offers badminton, 5-a-side football, basketball and a number of exercise classes. Cherry Hinton also offers other activities for the younger population such as a recreation ground with children’s play area and a park which has paddling pools, tennis courts and children’s play equipment. There are four primary schools in Cherry Hinton which also falls under the catchment area for Netherhall Secondary School or St Bede’s Inter-Church Comprehensive School.
The site currently comprises a detached dwelling set within a generous residential plot with frontage onto High Street. Planning permission has been granted for the demolition of the existing property and the redevelopment of the site to provide a 2.5-storey nine bedroom, nine person large House in Multiple Occupation (Sui Generis) alongside a separate two bedroom dwelling, together with associated works.
The proposed scheme will create a substantial HMO building arranged across two and a half storeys, designed to provide nine individual bedrooms with shared living accommodation and associated facilities. In addition, the development includes the construction of a separate two bedroom residential dwelling positioned within the site, offering independent accommodation.
The proposal also includes associated landscaping, access arrangements and outdoor amenity space, creating a well considered residential scheme within an established neighbourhood setting.
Cherry Hinton is a well regarded suburb located to the east of Cambridge city centre, offering a range of everyday amenities including shops, schooling and recreational facilities. The area benefits from regular bus services along High Street and convenient access to Cambridge city centre, the railway station and the A14, making it a practical location for residents and commuters alike.
The planning permission (Ref: 25/01321/ful) was approved by Cambridge City Council in February 2026.
EPC Rating: D
Location
Within the High Street and village centre, there are several amenities such as two health centres, a mini supermarket, a newsagent, pharmacy, charity shop, post office and many restaurants and food outlets. There are various sports facilities and clubs within the village, including the leisure centre which offers badminton, 5-a-side football, basketball and a number of exercise classes. Cherry Hinton also offers other activities for the younger population such as a recreation ground with children’s play area and a park which has paddling pools, tennis courts and children’s play equipment. There are four primary schools in Cherry Hinton which also falls under the catchment area for Netherhall Secondary School or St Bede’s Inter-Church Comprehensive School.
Mortgage calculator
Monthly repayment
£4,502 per month
Whole of market comparison
70+ lenders and 10,000+ products
The monthly repayments provided are estimates and should be used as a guide only. The actual amount you can borrow will depend on your personal financial situation and subject to a full application. For a more precise estimate, please use the Mojo mortgage calculator. Your home or property may be repossessed if you do not keep up repayments on your mortgage.



.png)