Guide price
£400,000
Land for saleHerbert Drive, Methwold IP26
Freehold
About this property
Part-completed Residential Development
Guide Price £400,000 - £450,000
2x Three Bedroom Detached Units
6x Three Bedroom Semi-Detached Units
1x Three Bedroom Terraced Unit
2x Two Bedroom Terraced Units
Norfolk Village Location
Guide Price £400,000 - £450,000. This part-completed new home development offers an exciting and unique opportunity to acquire 11 part-built units within a larger residential development in the norfolk village of Methwold.
Description
Guide Price £400,000 - £450,000.
Development opportunity! This part-completed residential development offers an exciting and unique opportunity to acquire 11 part-built units within the Norfolk Village of Methwold, consisting of 2 three bedroom detached units, 6 three bedroom semi-detached units, 1 three bedroom terraced unit and 2 two bedroom terraced units.
The village is located approx 7 miles from Brandon, 15 miles from Thetford and 12 miles from Downham Market which benefits from a train station providing rail links to Ely, Cambridge and London Kings Cross.
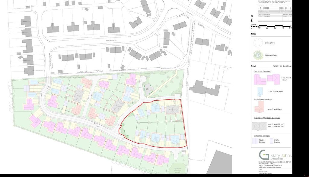
Plots 35 and 36 are three bedroom semi-detached units and furthest progressed, with screed laid and an underfloor heating system fitted.
Plots 34 and 40 are both three bedroom units, both part built up to 1st lift scaffold height.
Plot 41 - 44 are two pairs of three bedroom semi-detached units, also part built up to 1st lift scaffold height.
Plots 37 - 39, a terrace of three, are allocated to a Housing Association. 37 and 39 are two bedroom units, whilst plot 38 is a three bedroom unit. These are part built up to 1st lift scaffold.
The main drain crossing the site from plot 14 to the front of plot 36 is installed and live.
Electric and water mains are laid around the perimeter awaiting connection to each plot.
Relevant documents regarding Land South of Herbert Drive Methwold Thetford Norfolk IP26 4PY can be found on the Kings Lynn & West Norfolk planning portal under application no. 15/02125/om.
Agents Note
The Community Infrastructure Levy (cil) is unpaid.
Interested parties will need to make their own enquiries with regards to the exact location and suitability of services and their connections.
Plans are provided as an indication of the location of the units included, and not accurate/ exact scale of boundaries.
Molyneux Estate Agents intend to make our particulars as accurate as possible, however measurements and statements are provided as a general guidance, they are not factual and should not be relied upon.
The Buyer is advised to obtain verification of the tenure from their Solicitor. The agent has not reviewed the title documents for this property.
Anti-Money Laundering (Aml) And Identification
We are supervised by hmrc and, as such, have an obligation under anti-money laundering regulations to conduct anti-money laundering checks on all potential buyers and sellers. We have partnered with Coadjute who will securely manage these checks on our behalf.
Once an offer is accepted (subject to contract) Coadjute will send a secure link for you to complete the biometric checks electronically. A non-refundable fee of £27+ VAT per person will apply for these checks, and Coadjute will handle the payment for this service.
These anti-money laundering checks must be completed before we can send a Memorandum of Sale to solicitors to confirm the sale. Please contact the office if you have any questions in relation to this.
Description
Guide Price £400,000 - £450,000.
Development opportunity! This part-completed residential development offers an exciting and unique opportunity to acquire 11 part-built units within the Norfolk Village of Methwold, consisting of 2 three bedroom detached units, 6 three bedroom semi-detached units, 1 three bedroom terraced unit and 2 two bedroom terraced units.
The village is located approx 7 miles from Brandon, 15 miles from Thetford and 12 miles from Downham Market which benefits from a train station providing rail links to Ely, Cambridge and London Kings Cross.
Plots 35 and 36 are three bedroom semi-detached units and furthest progressed, with screed laid and an underfloor heating system fitted.
Plots 34 and 40 are both three bedroom units, both part built up to 1st lift scaffold height.
Plot 41 - 44 are two pairs of three bedroom semi-detached units, also part built up to 1st lift scaffold height.
Plots 37 - 39, a terrace of three, are allocated to a Housing Association. 37 and 39 are two bedroom units, whilst plot 38 is a three bedroom unit. These are part built up to 1st lift scaffold.
The main drain crossing the site from plot 14 to the front of plot 36 is installed and live.
Electric and water mains are laid around the perimeter awaiting connection to each plot.
Relevant documents regarding Land South of Herbert Drive Methwold Thetford Norfolk IP26 4PY can be found on the Kings Lynn & West Norfolk planning portal under application no. 15/02125/om.
Agents Note
The Community Infrastructure Levy (cil) is unpaid.
Interested parties will need to make their own enquiries with regards to the exact location and suitability of services and their connections.
Plans are provided as an indication of the location of the units included, and not accurate/ exact scale of boundaries.
Molyneux Estate Agents intend to make our particulars as accurate as possible, however measurements and statements are provided as a general guidance, they are not factual and should not be relied upon.
The Buyer is advised to obtain verification of the tenure from their Solicitor. The agent has not reviewed the title documents for this property.
Anti-Money Laundering (Aml) And Identification
We are supervised by hmrc and, as such, have an obligation under anti-money laundering regulations to conduct anti-money laundering checks on all potential buyers and sellers. We have partnered with Coadjute who will securely manage these checks on our behalf.
Once an offer is accepted (subject to contract) Coadjute will send a secure link for you to complete the biometric checks electronically. A non-refundable fee of £27+ VAT per person will apply for these checks, and Coadjute will handle the payment for this service.
These anti-money laundering checks must be completed before we can send a Memorandum of Sale to solicitors to confirm the sale. Please contact the office if you have any questions in relation to this.
Mortgage calculator
Monthly repayment
£2,000 per month
Whole of market comparison
70+ lenders and 10,000+ products
The monthly repayments provided are estimates and should be used as a guide only. The actual amount you can borrow will depend on your personal financial situation and subject to a full application. For a more precise estimate, please use the Mojo mortgage calculator. Your home or property may be repossessed if you do not keep up repayments on your mortgage.



.png)