Offers over
£3,000,000
Land for saleLand At Old Orchard House, Horam TN21
New home
Freehold
About this property
Outline Planning Ref: App/C1435/W/22/3297371
Reserved Matters Ref: Wd/2023/1585/mrm
Conditions Ref : Wd/2023/1687/CD, wd/2024/1145/CD, wd/2025/2218/CD, wd/2025/1563/CD
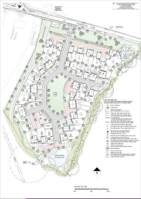
Exciting development opportunity with Planning Consent for 38 residential units comprising of 34 houses and 4 apartments
Location
Horam is a vibrant village in the Wealden District of East Sussex, situated three miles south of Heathfield and is in the parish of settlements including Vines Cross and Burlow. It lies in the Low Weald and is close to the southern boundary of the High Weald Area of Outstanding Natural Beauty (aonb). The village has good road links with the A267 linking Tunbridge Wells and Eastbourne. It is also served by various routes of the Eastbourne Bus company.
The site lies to the east of the village of Horam on Horebeech Lane, adjacent to the famous Cuckoo Trail and is well served by existing vehicular pedestrian and cycle links. Located approximately 12 minutes’ walk from Horam High Street which provides local amenities including café, pub, post office, pharmacy, convenience store, garage, hairdressers, dentist, vet, and a range of independent shops
Planning
Outline planning permission was granted for the erection of up to 38 dwellings, access, landscaping and other associated infrastructure at land at Old Orchard House, Horam, East Sussex TN21 9DZ. App/C1435/W/22/3297371
Reserved Matters Approval wd/2023/1585/mrm
A significant number of the Conditions have been approved: Wd/2023/1687/CD, wd/2024/1145/CD, wd/2025/2218/CD, wd/2025/1563/CD
Affordable Housing/Commuted Sum
Wealden District Council have confirmed a Commuted Sum payment of £1,569,247 in lieu of the affordable housing would be acceptable enabling all units on site to be offered as ‘open market’/private housing.
Cil
Vendor Est £528 K
Unilateral Undertaking
Copy of the document is available on request
Sales Details
Vendor's Notes
• The site is for sale freehold with vacant possession.
• VAT not applicable
• Exchange of contracts within 21 days of receipt of contract documentation. 10% deposit payable on exchange of contracts and held as agents for the vendor.
• A ransom strip to east and west boundaries is excluded from this sale.
• Unfettered access by foot and/or vehicle to and beyond the ransom will be a primary condition of the sale.
• Rights to connect all services, communication conduits are to be made available at no cost to the Vendor.
• An overage of £35,000 per unit will be levied if the total number of dwellings exceed the number of dwellings determined in app/C1435/W/22/3297371.
• In the event before or after exchange the purchaser does not legally complete, all rights be they copyright, letters of reliance, plans and reports relating to the discharge of conditions will be transferred to the vendor for the consideration of £1.00 (one pound)
Method of Sale
• The site is offered by Sale of Informal Tender(subject to contract).
• Offers are invited on an unconditional basis.
• All offers must be submitted in writing to rpc Land & New Homes
• Exchange of contracts within 21 days of receipt of contract documentation
• 10% deposit payable on exchange of contracts and held as agents for the vendor.
Services
• All intending purchasers are advised to make their own enquires with the relevant statutory bodies to ensure availability and adequacy of any services.
Viewing
• Strictly by appointment
All photographs, graphics and plans are for illustrative purposes only and all measurements are approximate
Misrepresentation Clause
Rpc Land & New Homes for themselves and for the vendors of this property for whom they act, give notice that: These particulars are prepared only for the guidance of prospective purchasers. They are intended to give a fair overall description of the property but do not constitute the whole or any part of an offer or contract. Rpc Land & New Homes undertake to comply with the terms of the Property Misdescriptions Act 1991 but prospective purchasers must satisfy themselves as to the accuracy of the contents of these particulars, and rpc Land & New Homes will not be liable in negligence for any loss arising from the use of these particulars. Any information contained herein (whether in the text, plans or photographs) is given in good faith but rpc Land & New Homes cannot guarantee the accuracy of any description, dimensions, references to condition, necessary permissions for use and occupation or any other details contained therein, nor should any information contained herein be relied upon as a statement or representation of fact. Prospective purchasers or tenants must satisfy themselves as to the accuracy of all information contained in these particulars. Prices and rents quoted in these particulars may be subject to VAT in addition. Nothing in these particulars shall be deemed to be a statement that the property is in good condition or otherwise, and reference to any plant, machinery, equipment, services, fixtures or fittings at the property shall not constitute a representation as to its state or condition or that it is capable of fulfilling its intended function. Prospective purchasers should satisfy themselves as to the fitness of such items for their requirements. The photographs appearing in this brochure show only certain parts and aspects of the property. Certain aspects of the property may have changed since the photographs were taken and it should not be assumed that the property remains precisely as displayed in the photographs. It should not be assumed that everything shown in the photographs is included in the sale of the property. Furthermore no assumptions should be made in respect of parts of the property which are not shown in the photographs. Any reference in these particulars to the fact that alterations have been carried out or that a particular use is made of any part of the property is not intended to be a statement that any necessary planning, building regulations or other consents have been obtained and these matters must be verified by any intending purchaser. No employee of rpc Land & New Homes has any authority to make or give any representation or warranty whatsoever in relation to the property.
Location
Horam is a vibrant village in the Wealden District of East Sussex, situated three miles south of Heathfield and is in the parish of settlements including Vines Cross and Burlow. It lies in the Low Weald and is close to the southern boundary of the High Weald Area of Outstanding Natural Beauty (aonb). The village has good road links with the A267 linking Tunbridge Wells and Eastbourne. It is also served by various routes of the Eastbourne Bus company.
The site lies to the east of the village of Horam on Horebeech Lane, adjacent to the famous Cuckoo Trail and is well served by existing vehicular pedestrian and cycle links. Located approximately 12 minutes’ walk from Horam High Street which provides local amenities including café, pub, post office, pharmacy, convenience store, garage, hairdressers, dentist, vet, and a range of independent shops
Planning
Outline planning permission was granted for the erection of up to 38 dwellings, access, landscaping and other associated infrastructure at land at Old Orchard House, Horam, East Sussex TN21 9DZ. App/C1435/W/22/3297371
Reserved Matters Approval wd/2023/1585/mrm
A significant number of the Conditions have been approved: Wd/2023/1687/CD, wd/2024/1145/CD, wd/2025/2218/CD, wd/2025/1563/CD
Affordable Housing/Commuted Sum
Wealden District Council have confirmed a Commuted Sum payment of £1,569,247 in lieu of the affordable housing would be acceptable enabling all units on site to be offered as ‘open market’/private housing.
Cil
Vendor Est £528 K
Unilateral Undertaking
Copy of the document is available on request
Sales Details
Vendor's Notes
• The site is for sale freehold with vacant possession.
• VAT not applicable
• Exchange of contracts within 21 days of receipt of contract documentation. 10% deposit payable on exchange of contracts and held as agents for the vendor.
• A ransom strip to east and west boundaries is excluded from this sale.
• Unfettered access by foot and/or vehicle to and beyond the ransom will be a primary condition of the sale.
• Rights to connect all services, communication conduits are to be made available at no cost to the Vendor.
• An overage of £35,000 per unit will be levied if the total number of dwellings exceed the number of dwellings determined in app/C1435/W/22/3297371.
• In the event before or after exchange the purchaser does not legally complete, all rights be they copyright, letters of reliance, plans and reports relating to the discharge of conditions will be transferred to the vendor for the consideration of £1.00 (one pound)
Method of Sale
• The site is offered by Sale of Informal Tender(subject to contract).
• Offers are invited on an unconditional basis.
• All offers must be submitted in writing to rpc Land & New Homes
• Exchange of contracts within 21 days of receipt of contract documentation
• 10% deposit payable on exchange of contracts and held as agents for the vendor.
Services
• All intending purchasers are advised to make their own enquires with the relevant statutory bodies to ensure availability and adequacy of any services.
Viewing
• Strictly by appointment
All photographs, graphics and plans are for illustrative purposes only and all measurements are approximate
Misrepresentation Clause
Rpc Land & New Homes for themselves and for the vendors of this property for whom they act, give notice that: These particulars are prepared only for the guidance of prospective purchasers. They are intended to give a fair overall description of the property but do not constitute the whole or any part of an offer or contract. Rpc Land & New Homes undertake to comply with the terms of the Property Misdescriptions Act 1991 but prospective purchasers must satisfy themselves as to the accuracy of the contents of these particulars, and rpc Land & New Homes will not be liable in negligence for any loss arising from the use of these particulars. Any information contained herein (whether in the text, plans or photographs) is given in good faith but rpc Land & New Homes cannot guarantee the accuracy of any description, dimensions, references to condition, necessary permissions for use and occupation or any other details contained therein, nor should any information contained herein be relied upon as a statement or representation of fact. Prospective purchasers or tenants must satisfy themselves as to the accuracy of all information contained in these particulars. Prices and rents quoted in these particulars may be subject to VAT in addition. Nothing in these particulars shall be deemed to be a statement that the property is in good condition or otherwise, and reference to any plant, machinery, equipment, services, fixtures or fittings at the property shall not constitute a representation as to its state or condition or that it is capable of fulfilling its intended function. Prospective purchasers should satisfy themselves as to the fitness of such items for their requirements. The photographs appearing in this brochure show only certain parts and aspects of the property. Certain aspects of the property may have changed since the photographs were taken and it should not be assumed that the property remains precisely as displayed in the photographs. It should not be assumed that everything shown in the photographs is included in the sale of the property. Furthermore no assumptions should be made in respect of parts of the property which are not shown in the photographs. Any reference in these particulars to the fact that alterations have been carried out or that a particular use is made of any part of the property is not intended to be a statement that any necessary planning, building regulations or other consents have been obtained and these matters must be verified by any intending purchaser. No employee of rpc Land & New Homes has any authority to make or give any representation or warranty whatsoever in relation to the property.
Mortgage calculator
Monthly repayment
£15,007 per month
Whole of market comparison
70+ lenders and 10,000+ products
The monthly repayments provided are estimates and should be used as a guide only. The actual amount you can borrow will depend on your personal financial situation and subject to a full application. For a more precise estimate, please use the Mojo mortgage calculator. Your home or property may be repossessed if you do not keep up repayments on your mortgage.


.png)