Guide price
£150,000
Land for saleBawtry Road, Tickhill, Doncaster DN11
Auction
Freehold
About this property
Guide price £150,000
Individually Designed Residence
Semi Rural Location, Good Sized Plot
Easy Access to Tickhill & Bawtry
Contact us for Further Details & To Arrange A Viewing
Full planning granted and implementation of the permission.
Summary
***remains available under the auction conditions***contact the auctioneers to make an offer now***
description
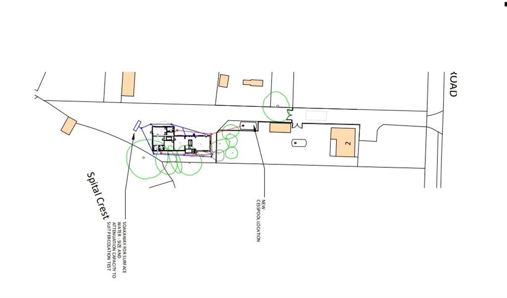
The vendor has taken considerable time and effort to gain all the pricings and reports for any prospective buyer to help them make a decision on a purchase. Hence a ready to build scheme is in place for viewers to peruse during their viewing. Full planning has been granted for a new property to be built on the plot which is approximately 1,220 sq. Ft in which Doncaster Planning have approved a material start on the application meaning that there is not a scheduled time for the build to commence, this has been filed under a new reference of 25/01736/ful. We have been informed by the seller that they are addressing the two current restrictions in relation to the SUDs drainage calculation, cesspool and drainage. The layout is over one level, offering any prospective buyer a versatile home which would appeal to many buyers or developers. The proposed planning accommodation offers an open plan living arrangement which would suit both the young professional, families and retired or disabled, and also offers plenty of space for wheelchair accessibility. The setting to which it stands has a rural feel and is located to the far side off Bawtry Road behind 2 Bawtry Road. The site offers an easy access to a wide array of amenities including shopping, schooling, and access to both Bawtry & Tickhill. Further information can be found of Doncaster Planning Portal using the new reference: 25/01736/ful and confirmation from Doncaster Council that planning has commenced will be itemised within
Overview
Overview
The vendor has taken considerable time and effort to gain all the pricings and reports for any prospective buyer to help them make a decision on a purchase. Hence a ready to build scheme is in place for viewers to peruse during their viewing.
It is a wonderful opportunity to build your own home with a mix of the contemporary and modern, also incorporating character stone which is prominent in many Tickhill properties.
Full planning has been granted for a new property to be built on the plot which is approx 1,220 square foot. Its layout is over one level, offering any prospective buyer a versatile home which would appeal to many buyers.
It has an open plan living arrangement which would suit both the young professional, families and retired or disabled, as it offers plenty of space for wheelchairs to get around. The feature glazed link with a glass front and roof light marry`s up the existing stone building to the new part of the property which would be completed by the new buyer.
The setting to which it stands has a rural feel and is located to the far side off Bawtry Road behind 2 Bawtry Road. It offers an easy access to a wide array of amenities including shopping, schooling and motorway access to both Bawtry & Tickhill.
New Build Accommodation Comprises of:
Open Plan Kitchen and Dining Room
Utility Room & WC
Lounge
Master Suite with Dressing Room & Ensuite
Bedroom Two
Ensuite
Bedroom Three
Ensuite
Gardens & Parking Area
Important Notice:
For each Lot, a contract documentation fee of £1500 (inclusive of VAT) is payable to the Auctioneers by the buyer. The seller may charge additional fees payable upon completion. If applicable, such fees are detailed within the Special Conditions of Sale. Buyers are deemed to bid in full knowledge of this.
The Guide Price quoted must not be relied upon by prospective purchasers as a valuation or assessment of value of the property. It is intended to provide purchasers with an indication of the region at which the reserve may be set at the time of going to press. The guide price may be subject to variation and interested parties are advised to make regular checks for variations and should be aware that the reserve price may be either below or above the quoted guide price.
**please contact the auctioneers at to request A copy of the legal pack, if this is available we can email it over to you**
Prospective purchasers should also be aware that the eventual sale price may be above or below the guide level dependent upon competition, and should therefore not presume the guide to be indicative of the final expected sale price or the price the property is available at.
Important Notice:
When setting the guide price, the auctioneers have given consideration to the seller's instructions in respect of their indicated reserve price at the time of instruction. The reserve price, (the level below which the property will not be sold), remains confidential between the seller and the auctioneer. The guide price therefore, is intended to indicate the region at which the reserve price is intended to be set. The seller will confirm their final reserve price close to the auction date and if appropriate the auctioneers may adjust the guide price to reflect this.
Whilst the auctioneers make every effort to ensure the safety and security of viewers at properties, we have not carried out a detailed Health & Safety inspection of properties in our auctions and cannot therefore guarantee the safety and security of viewers.
Prospective purchasers and bidders attend properties entirely at their own risk. Particular care should be taken when accessing cellars, attics, exterior grounds and outbuildings and boundaries. All non-conducted inspections of vacant sites should be made in daylight hours only and entry into such sites is entirely at the viewers risk.
Registration for bidding online will close the Friday before the auction sale. Please ensure you register and submit all the details and documents required in time. Without authorisation to bid prior to the sale you will be unable to bid in the auction.
1. Money laundering regulations: Intending purchasers will be asked to produce identification documentation at a later stage and we would ask for your co-operation in order that there will be no delay in agreeing the sale.
2. General: While we endeavour to make our sales particulars fair, accurate and reliable, they are only a general guide to the property and, accordingly, if there is any point which is of particular importance to you, please contact the office and we will be pleased to check the position for you, especially if you are contemplating travelling some distance to view the property.
3. The measurements indicated are supplied for guidance only and as such must be considered incorrect.
4. Services: Please note we have not tested the services or any of the equipment or appliances in this property, accordingly we strongly advise prospective buyers to commission their own survey or service reports before finalising their offer to purchase.
5. These particulars are issued in good faith but do not constitute representations of fact or form part of any offer or contract. The matters referred to in these particulars should be independently verified by prospective buyers or tenants. Neither sequence (UK) limited nor any of its employees or agents has any authority to make or give any representation or warranty whatever in relation to this property.
***remains available under the auction conditions***contact the auctioneers to make an offer now***
description
The vendor has taken considerable time and effort to gain all the pricings and reports for any prospective buyer to help them make a decision on a purchase. Hence a ready to build scheme is in place for viewers to peruse during their viewing. Full planning has been granted for a new property to be built on the plot which is approximately 1,220 sq. Ft in which Doncaster Planning have approved a material start on the application meaning that there is not a scheduled time for the build to commence, this has been filed under a new reference of 25/01736/ful. We have been informed by the seller that they are addressing the two current restrictions in relation to the SUDs drainage calculation, cesspool and drainage. The layout is over one level, offering any prospective buyer a versatile home which would appeal to many buyers or developers. The proposed planning accommodation offers an open plan living arrangement which would suit both the young professional, families and retired or disabled, and also offers plenty of space for wheelchair accessibility. The setting to which it stands has a rural feel and is located to the far side off Bawtry Road behind 2 Bawtry Road. The site offers an easy access to a wide array of amenities including shopping, schooling, and access to both Bawtry & Tickhill. Further information can be found of Doncaster Planning Portal using the new reference: 25/01736/ful and confirmation from Doncaster Council that planning has commenced will be itemised within
Overview
Overview
The vendor has taken considerable time and effort to gain all the pricings and reports for any prospective buyer to help them make a decision on a purchase. Hence a ready to build scheme is in place for viewers to peruse during their viewing.
It is a wonderful opportunity to build your own home with a mix of the contemporary and modern, also incorporating character stone which is prominent in many Tickhill properties.
Full planning has been granted for a new property to be built on the plot which is approx 1,220 square foot. Its layout is over one level, offering any prospective buyer a versatile home which would appeal to many buyers.
It has an open plan living arrangement which would suit both the young professional, families and retired or disabled, as it offers plenty of space for wheelchairs to get around. The feature glazed link with a glass front and roof light marry`s up the existing stone building to the new part of the property which would be completed by the new buyer.
The setting to which it stands has a rural feel and is located to the far side off Bawtry Road behind 2 Bawtry Road. It offers an easy access to a wide array of amenities including shopping, schooling and motorway access to both Bawtry & Tickhill.
New Build Accommodation Comprises of:
Open Plan Kitchen and Dining Room
Utility Room & WC
Lounge
Master Suite with Dressing Room & Ensuite
Bedroom Two
Ensuite
Bedroom Three
Ensuite
Gardens & Parking Area
Important Notice:
For each Lot, a contract documentation fee of £1500 (inclusive of VAT) is payable to the Auctioneers by the buyer. The seller may charge additional fees payable upon completion. If applicable, such fees are detailed within the Special Conditions of Sale. Buyers are deemed to bid in full knowledge of this.
The Guide Price quoted must not be relied upon by prospective purchasers as a valuation or assessment of value of the property. It is intended to provide purchasers with an indication of the region at which the reserve may be set at the time of going to press. The guide price may be subject to variation and interested parties are advised to make regular checks for variations and should be aware that the reserve price may be either below or above the quoted guide price.
**please contact the auctioneers at to request A copy of the legal pack, if this is available we can email it over to you**
Prospective purchasers should also be aware that the eventual sale price may be above or below the guide level dependent upon competition, and should therefore not presume the guide to be indicative of the final expected sale price or the price the property is available at.
Important Notice:
When setting the guide price, the auctioneers have given consideration to the seller's instructions in respect of their indicated reserve price at the time of instruction. The reserve price, (the level below which the property will not be sold), remains confidential between the seller and the auctioneer. The guide price therefore, is intended to indicate the region at which the reserve price is intended to be set. The seller will confirm their final reserve price close to the auction date and if appropriate the auctioneers may adjust the guide price to reflect this.
Whilst the auctioneers make every effort to ensure the safety and security of viewers at properties, we have not carried out a detailed Health & Safety inspection of properties in our auctions and cannot therefore guarantee the safety and security of viewers.
Prospective purchasers and bidders attend properties entirely at their own risk. Particular care should be taken when accessing cellars, attics, exterior grounds and outbuildings and boundaries. All non-conducted inspections of vacant sites should be made in daylight hours only and entry into such sites is entirely at the viewers risk.
Registration for bidding online will close the Friday before the auction sale. Please ensure you register and submit all the details and documents required in time. Without authorisation to bid prior to the sale you will be unable to bid in the auction.
1. Money laundering regulations: Intending purchasers will be asked to produce identification documentation at a later stage and we would ask for your co-operation in order that there will be no delay in agreeing the sale.
2. General: While we endeavour to make our sales particulars fair, accurate and reliable, they are only a general guide to the property and, accordingly, if there is any point which is of particular importance to you, please contact the office and we will be pleased to check the position for you, especially if you are contemplating travelling some distance to view the property.
3. The measurements indicated are supplied for guidance only and as such must be considered incorrect.
4. Services: Please note we have not tested the services or any of the equipment or appliances in this property, accordingly we strongly advise prospective buyers to commission their own survey or service reports before finalising their offer to purchase.
5. These particulars are issued in good faith but do not constitute representations of fact or form part of any offer or contract. The matters referred to in these particulars should be independently verified by prospective buyers or tenants. Neither sequence (UK) limited nor any of its employees or agents has any authority to make or give any representation or warranty whatever in relation to this property.
Mortgage calculator
Monthly repayment
£750 per month
Whole of market comparison
70+ lenders and 10,000+ products
The monthly repayments provided are estimates and should be used as a guide only. The actual amount you can borrow will depend on your personal financial situation and subject to a full application. For a more precise estimate, please use the Mojo mortgage calculator. Your home or property may be repossessed if you do not keep up repayments on your mortgage.



.png)